橋頭∣近高大特區∣鳳凰villa全新三房平車

2.5萬/月

楠梓土庫店(凱璿不動產事業股份有限公司-楠梓分公司)

07-3515353

 預約看屋  線上提問

橋頭∣近高大特區∣鳳凰villa全新三房平車

0256728

073515353

租屋 / 高雄市 / 橋頭區 /
橋頭∣近高大特區∣鳳凰villa全新三房平車
鳳凰Villa
  • 相似物件推薦

物件詳細資料

點閱次數:64次

  • 房屋資訊

    車位/備註
    公設車位 坡道/平面/ 機車車位:1樓#343
    管理費
    2340元/月繳
    使用分區
    鄉村區/乙種建築用地
    現況
    空屋
    面臨路寬
    12 米
    建築結構
    鋼筋混凝土RC
    電梯總數
    2
    每層戶數
    8 戶
    押金
    2個月
    性別限制
    不限
    開伙
    面議
    養寵物
    面議
    頂樓加蓋
    隔間材質
  • 謄本資料

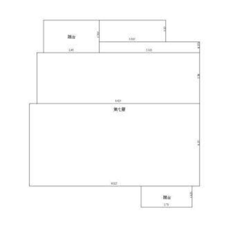
    主建物
    21.12 坪
    附屬建物
    2.45 坪
    公共設施
    11.69 坪(內含車位:5.77坪)
    車位坪
    5.77 坪
    地下室
    地坪
    9.26 坪
    謄本主要用途
    集合住宅
    *小數點取二位第三位無條件捨去
  • 設備資訊

    • 公共設施
      電梯
      公用陽台
      休閒設施
    • 消防保全
      滅火器
      緩降梯
      緊急照明
      監視系統
    • 提供設備
      網路
      第四台
      洗衣機
      脫水機
      濾水器
      電視
      液晶電視
      烘衣機
      飲水機
      冰箱
      瓦斯爐
      微波爐
      冷氣
      電話
      烤箱
      熱水器
      天然瓦斯
      電磁爐
      電風扇
      中央空調
      排油煙機
    • 提供家具
      衣櫥
      餐桌
      餐椅
      單人床
      雙人床
      書桌
      茶几
      置物櫃
      書架
      椅子
      單人沙發
      雙人(以上)沙發
      窗簾
      流理台
    • 生活機能
      百貨公司
      便利商店
      傳統市場
      夜市
      公園綠地
      學校
      醫療機構

周邊資訊

鄰近學校(2公里內)

市立甲圍國小,市立橋頭國中

公園

甲圍公園

特色說明

  • 近學校
  • 近公園
  • ◎家具電器可談
  • ◎地上10層,地下1層,共有372戶住家
  • ◎公設規劃應有盡有:交誼廳、閱覽室、KTV、
  • ◎游泳池、健身房、桌球室、遊戲區、瑜珈教室、廚藝教室
  • ◎採光標準三房、配有平面車位及一機車位

地圖/街景

地圖街景建置中

實價登錄