陽光美術店(凱璿品勝不動產有限公司)
07-5531717
★七米大面寬樓店★仁武澄德商圈|社區中心商業區
物件編號:
0024528
7.5
萬
大樓
1
廳
1
衛
物件特色
位於澄德重劃區,主要道路人口以及車流量多 擁有7米大面寬,廣告招牌顯眼 本物件租金已含管理費,不含水電費 推薦各類型診所、公司行號承租 本物件距離八卦寮熱鬧美食街僅騎車約2分鐘路程
地址
仁武區八德南路
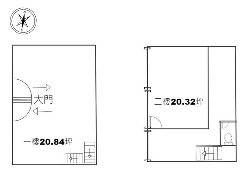
建物登記
54.53
坪
附屬建物
0 坪
公共設施
13.38 坪
停車場
地下室
分項面積主建物
41.15 坪
土地登記總坪數
8.05 坪
管理費
3545 / 月繳 元/每月
車位
無/
座向
座東北 朝西南
屋齡
8.4 年
樓高/樓別
15 /1-2
類別
店面
外牆建材
捷運站牌
市場
學區
公園
商圈
承德公園