SKM Park 桂林商圈中安路金店面

69826.89萬/坪

中華明誠店(凱璿不動產事業股份有限公司中華分公司)

07-5520006

 預約看屋  線上提問

SKM Park 桂林商圈中安路金店面

0920753

075520006

買屋 / 高雄市 / 小港區 /
SKM Park 桂林商圈中安路金店面
紅樓公寓大廈
  • 相似物件推薦

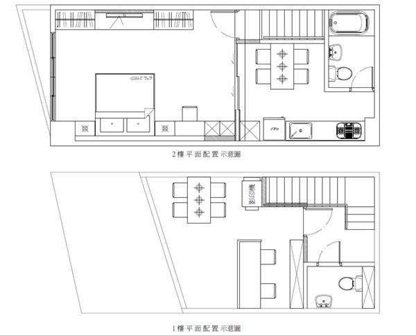
物件詳細資料

點閱次數:478次

  • 房屋資訊

    車位/備註
    管理費
    500元/月繳
    入門朝向
    座南 朝北
    使用分區
    第三種住宅區
    現況
    空屋
    面臨路寬
    25 米
    建築結構
    鋼筋混凝土構造
  • 謄本資料

    主建物
    24.02 坪
    附屬建物
    0.71 坪
    公共設施
    1.22 坪
    車位坪
    地下室
    地坪
    4.24 坪
    謄本主要用途
    *小數點取二位第三位無條件捨去

周邊資訊

捷運‧公車站牌(1公里內)

捷運站:R4A草衙站 (1626 公尺)

市場

中安黃昏市場

鄰近學校(2公里內)

市立桂林國小,市立明義國中

公園

桂林里公園、桂林里公園

商圈

桂陽生活圈

特色說明

  • 近學校
  • 近市場
  • 近捷運站
  • 近商圈
  • 近公園
  • 近SKM Park Outlets 高雄草衙.
  • 近草衙捷運,國道交通便利
  • 便宜店面收租自用皆宜
  • 近桂林商圈生活機能佳

    地圖/街景

    實價登錄