愛河之心景觀R12捷運宅2+1房平車贈3百萬裝潢

148038.27萬/坪

農十六神農店(凱璿不動產事業股份有限公司龍勝分公司)

07-5548777

 預約看屋  線上提問

愛河之心景觀R12捷運宅2+1房平車贈3百萬裝潢

0935834

075548777

買屋 / 高雄市 / 三民區 /
愛河之心景觀R12捷運宅2+1房平車贈3百萬裝潢
  • 相似物件推薦

物件詳細資料

點閱次數:1815次

  • 房屋資訊

    車位/備註
    公設車位 坡道/平面
    管理費
    2340元/月繳
    入門朝向
    座北 朝南
    使用分區
    住四
    現況
    空屋
    面臨路寬
    25 米
    建築結構
    鋼筋混凝土RC
    電梯總數
    1
    每層戶數
    2 戶
  • 謄本資料

    主建物
    22.53 坪
    附屬建物
    4.17 坪
    公共設施
    11.96 坪
    車位坪
    地下室
    地坪
    3.34 坪
    謄本主要用途
    住家用
    *小數點取二位第三位無條件捨去

周邊資訊

捷運‧公車站牌(1公里內)

捷運站:R12後驛站 (374 公尺)
捷運站:凹子底站 (671 公尺)
捷運站:龍華國小站 (788 公尺)
捷運站:愛河之心站 (528 公尺)
捷運站:新上國小站 (912 公尺)

市場

十全市場

鄰近學校(2公里內)

市立十全國小,市立三民國中

公園

愛河之心

特色說明

  • 近學校
  • 近市場
  • 近捷運站
  • 近公園
  • ◎1.R12捷運旁愛河之心公園首排
  • ◎2.贈300多萬設計師裝潢頂級地磚、廚具
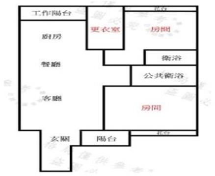
  • ◎3.前後陽台進出 大室內26坪
  • ◎4.主臥室內有更衣室
  • ◎5.1層2戶 戶數少且單純 ◎6.近農16、好市多、富邦百貨

地圖/街景

實價登錄