大樂河堤裕誠商圈S3全新燙金發財樓店|平車另購

273053.8萬/坪

台慶R13忠言店(凱璿商用不動產有限公司)

0970760021

 預約看屋  線上提問

大樂河堤裕誠商圈S3全新燙金發財樓店|平車另購

S2653207

陳辳綦0970760021

陳辳綦0970760021

大樂河堤裕誠商圈S3全新燙金發財樓店|平車另購
京城閱河堤
  • 相似物件推薦

物件詳細資料

點閱次數:733次

  • 房屋資訊

    車位/備註
    使用分區
    第五種住宅區
    現況
    空屋
    面臨路寬
    17 米
    建築結構
    鋼筋混凝土造
  • 謄本資料

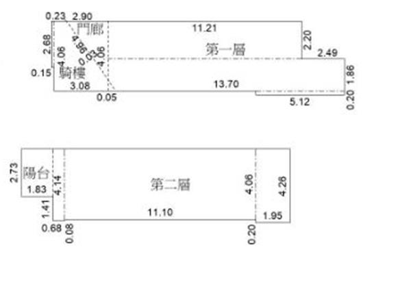
    主建物
    34.25 坪
    附屬建物
    1.51 坪
    公共設施
    12.79 坪
    車位坪
    地下室
    地坪
    6.27 坪
    謄本主要用途
    店舖、集合住宅
    *小數點取二位第三位無條件捨去

周邊資訊

市場

自由黃昏市場

鄰近學校(2公里內)

河堤國小,市立鼎金國中,市立龍華國中

公園

河堤公園

特色說明

  • 近學校
  • 近市場
  • 河堤、裕誠、大樂三商圈,生活機能絕佳
  • 位處明星學區,人潮熱鬧聚集地
  • 鄰近中山高、鼎金系統,開車10分鐘到左營高鐵
  • 全棟採耐震系統工法,頂級建材
  • 1+2樓住家、店面兩用,1F挑高門面 可另購平面車位

地圖/街景

地圖街景建置中

實價登錄