鳳山五甲家樂福活巷優質大地坪透天
1100
萬
49.12
萬/坪
詳細資料
周邊
特色說明
地圖街景
實價登錄
五甲家樂福店
(凱璿凱碩不動產有限公司)
07-7615999
預約看屋
線上提問
鳳山五甲家樂福活巷優質大地坪透天
1660258
077615999
預約
提問
服務據點
加入我們
人才招募
店專區
留言諮詢
物件追蹤清單
Google搜尋
一般會員
帳號
此欄位必填!
密碼
此欄位必填!
登入
送出註冊/登入視同您已閱讀,並同意
權利義務說明內容
註冊
|
忘記密碼
此欄位必填!
此欄位必填!
此欄位必填!
登入
忘記密碼
|
忘記密碼
Email
簡訊
請您輸入店代號及帳號,我們會儘速將您的密碼傳送至您的信箱或手機簡訊。
店代號
帳 號
送出
凱璿不動產事業
[首頁]
首頁
買屋
找售案
新成屋
買方需求留言
賣屋
賣方需求留言
租屋
找租案
出租需求留言
關於凱璿
公司簡介
教育訓練中心
人才招募
得獎紀錄
隱私權聲明
活動資訊
活動花絮
房產動態
特約代書
建地價格試算
買屋
/
高雄市
/
鳳山區
/
鳳山五甲家樂福活巷優質大地坪透天
請注意,上方物件照片如有街景,為物件附近環境介紹,非物件本身。
編號:
1660258
複製分享
1260萬
12%
1100
萬
49.12
萬/坪
貸款試算
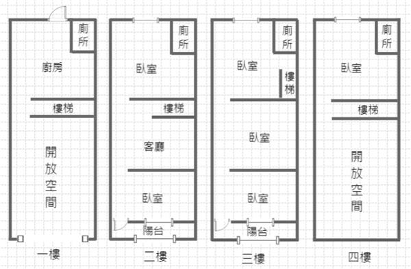
格局
6房 2 廳 4 衛
格局
屋齡
54 年
屋齡
權狀坪
22.39 坪
權狀坪
地址
鳳山區鳳南路
型態/類別
透天 /住家
樓別/樓高
1-2 /2
主+附
22.39 坪
地坪
20.57 坪
五甲家樂福店
(凱璿凱碩不動產有限公司)
高雄市鳳山區五甲二路335號
07-7615999
立即預約看屋
線上提問
先生
小姐
方便聯絡時間
皆可
早上
下午
晚上
預約看屋
先生
小姐
線上提問
相似物件推薦
鳳山國中捷運...
1090
萬
建坪:
20.2
4
房
鳳山區中山東路
近捷運近鳳山...
1090
萬
建坪:
20.2
4
房
鳳山區中山東路
鳳山國中捷運...
1090
萬
建坪:
20.2
4
房
鳳山區中山東路
★鳳山國中捷...
1090
萬
建坪:
20.2
4
房
鳳山區中山東路
捷運鳳山國中...
1090
萬
建坪:
20.2
4
房
鳳山區中山東路
大東/活巷/...
1090
萬
建坪:
20.2
4
房
鳳山區中山東路
大東&鳳山國...
998
萬
建坪:
19.84
4
房
鳳山區黃埔路
鳳山國中捷運...
1090
萬
1198萬
建坪:
20.2
4
房
鳳山區中山東路
O14鳳山國...
1298
萬
建坪:
20.2
4
房
鳳山區中山東路
黃埔公園大東...
998
萬
建坪:
19.84
4
房
鳳山區黃埔路
正五甲商圈近...
998
萬
建坪:
22.88
5
房
鳳山區五甲二路
O14捷運站...
1090
萬
建坪:
20.2
4
房
鳳山區中山東路
五甲南華商圈...
1098
萬
1298萬
建坪:
25.8
1
房
鳳山區南江街
五甲商圈近五...
998
萬
1080萬
建坪:
22.88
5
房
鳳山區五甲二路
鳳山五甲商圈...
950
萬
建坪:
23.33
5
房
鳳山區南正一路
物件詳細資料
點閱次數:871次
房屋資訊
車位/備註
無
使用分區
第三之一種住宅區
現況
空屋
面臨路寬
3 米
建築結構
加強磚造
謄本資料
主建物
22.39 坪
附屬建物
公共設施
車位坪
地下室
地坪
20.57 坪
謄本主要用途
*小數點取二位第三位無條件捨去
周邊資訊
鄰近學校(2公里內)
市立南成國小,市立五甲國中
特色說明
近學校
1.屋況稍加整理.增建至四樓
2.近中山高、黃線捷運、台88線,交通便利
3.室內空間大好規畫使用.樓下可當車庫
4.近五甲家樂福,超商採購便利
5.優質地段、稀有釋出、生活機能佳
地圖/街景
實價登錄