中山大學&渡船頭大地坪收租學舍

298836.12萬/坪

孟子自由店(凱璿發貴不動產有限公司)

07-3506161

 預約看屋  線上提問

中山大學&渡船頭大地坪收租學舍

0453633

073506161

買屋 / 高雄市 / 鼓山區 /
中山大學&渡船頭大地坪收租學舍
  • 相似物件推薦

物件詳細資料

點閱次數:190次

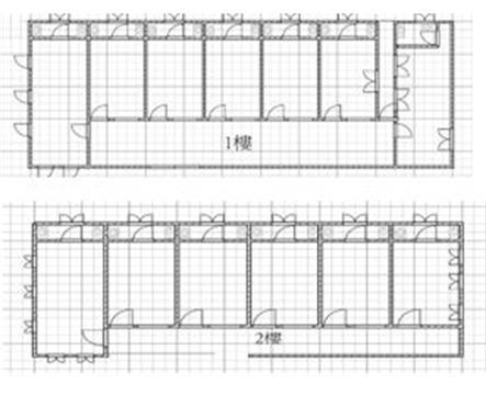
  • 房屋資訊

    車位/備註
    入門朝向
    座東南 朝西北
    使用分區
    商三
    現況
    出租
    建築結構
    磚造
  • 謄本資料

    主建物
    82.72 坪
    附屬建物
    公共設施
    車位坪
    地下室
    地坪
    74.11 坪
    謄本主要用途
    空白
    *小數點取二位第三位無條件捨去

周邊資訊

捷運‧公車站牌(1公里內)

捷運站:哈瑪星站 (419 公尺)
捷運站:駁二蓬萊站 (965 公尺)
捷運站:哈瑪星站 (560 公尺)

鄰近學校(2公里內)

市立壽山國中,市立鼓山國小

特色說明

  • 近學校
  • 近捷運站
  • ※年收租破百萬包租婆最愛
  • ※近中山大學長期滿租中收入穩定
  • ※渡船頭旁商圈熱鬧生活機能好
  • ※超大地坪商業用地保值佳
  • ※無須花錢再整理現買現收租 ※超稀有釋出錯過不再

地圖/街景

實價登錄