楠梓土庫未來清豐社宅及康橋國際學校商圈〡角窗透店

650061.49萬/坪

楠梓土庫店(凱璿不動產事業股份有限公司-楠梓分公司)

07-3515353

 預約看屋  線上提問

楠梓土庫未來清豐社宅及康橋國際學校商圈〡角窗透店

1661524

073515353

買屋 / 高雄市 / 楠梓區 /
楠梓土庫未來清豐社宅及康橋國際學校商圈〡角窗透店
  • 相似物件推薦

物件詳細資料

點閱次數:122次

  • 房屋資訊

    車位/備註
    入門朝向
    座東南 朝西北
    使用分區
    第三種住宅區
    現況
    出租
    面臨路寬
    28 米
    建築結構
    鋼筋混凝土RC
  • 謄本資料

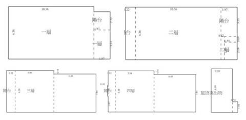
    主建物
    94.84 坪
    附屬建物
    10.87 坪
    公共設施
    車位坪
    地下室
    地坪
    48.95 坪
    謄本主要用途
    住家用
    *小數點取二位第三位無條件捨去

周邊資訊

捷運‧公車站牌(1公里內)

捷運站:青埔站 (880 公尺)

鄰近學校(2公里內)

市立楠梓國小,市立楠梓國中

公園

台糖花卉

VR720/特色

  • 近學校
  • 近捷運站
  • 近公園
  • ◎商圈內清豐社宅(1594戶)將於116年1月完工,目前生活機能已佳,後續潛力更
  • ◎本點位社宅前門位置,且在家樂福,全聯,7-11購物動線前
  • ◎創新路幹道角窗明顯度及接近性均佳,店住兩相宜
  • ◎台積電及橋科效益增值性佳,提早卡位賺增值
  • ◎目前投報1.6%(目前租金月收入8萬),三年後可望提升至2.8%(月租金14萬 )

地圖/街景

實價登錄