華鳳特區精美2改1房大空間~大平車

99830.63萬/坪

農十六龍德店(凱璿易居不動產有限公司)

07-5551333

 預約看屋  線上提問

華鳳特區精美2改1房大空間~大平車

0144384

075551333

買屋 / 高雄市 / 鳳山區 /
華鳳特區精美2改1房大空間~大平車
舞悅天
  • 相似物件推薦

物件詳細資料

點閱次數:998次

  • 房屋資訊

    車位/備註
    公設車位 坡道/平面
    管理費
    2118元/月繳
    入門朝向
    座西 朝東
    使用分區
    第二之二種住宅區
    現況
    自住(用)
    面臨路寬
    8 米
    建築結構
    鋼筋混凝土RC
    電梯總數
    2
    每層戶數
    6 戶
  • 謄本資料

    主建物
    15.06 坪
    附屬建物
    1.89 坪
    公共設施
    8.29 坪(內含車位:7.35坪)
    車位坪
    7.35 坪
    地下室
    地坪
    6.17 坪
    謄本主要用途
    *小數點取二位第三位無條件捨去

周邊資訊

捷運‧公車站牌(1公里內)

捷運站:O14鳳山國中站 (2589 公尺)

市場

赤山市場

鄰近學校(2公里內)

市立鎮北國小,文山高級中學(國中部)

商圈

華鳳特區生活圈

特色說明

  • 近學校
  • 近市場
  • 近捷運站
  • 近商圈
  • 華鳳指標建商釋出美宅,屋齡年輕。
  • 屋主惜屋,屋況超級好,可直接入住。
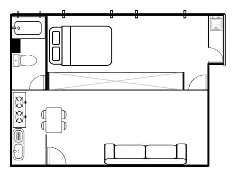
  • 華鳳特區中高樓層精美2改1房
  • 近文龍東路、經武商圈,商圈成熟生活機能佳
  • 社區稀有釋出2房格局,平車小資宅 格局方正,房間衛浴都有開窗。

地圖/街景

實價登錄