陽明義華商圈|翻新精美三房美寓|衛浴開窗
568
萬
25.23
萬/坪
詳細資料
周邊
特色說明
地圖街景
實價登錄
大樂河堤店
(雄赫不動產有限公司)
07-3478777
預約看屋
線上提問
陽明義華商圈|翻新精美三房美寓|衛浴開窗
1665774
073478777
預約
提問
服務據點
加入我們
人才招募
店專區
留言諮詢
物件追蹤清單
Google搜尋
一般會員
帳號
此欄位必填!
密碼
此欄位必填!
登入
送出註冊/登入視同您已閱讀,並同意
權利義務說明內容
註冊
|
忘記密碼
此欄位必填!
此欄位必填!
此欄位必填!
登入
忘記密碼
|
忘記密碼
Email
簡訊
請您輸入店代號及帳號,我們會儘速將您的密碼傳送至您的信箱或手機簡訊。
店代號
帳 號
送出
凱璿不動產事業
[首頁]
首頁
買屋
找售案
新成屋
買方需求留言
賣屋
賣方需求留言
租屋
找租案
出租需求留言
關於凱璿
公司簡介
教育訓練中心
人才招募
得獎紀錄
隱私權聲明
活動資訊
活動花絮
房產動態
特約代書
建地價格試算
買屋
/
高雄市
/
三民區
/
陽明義華商圈|翻新精美三房美寓|衛浴開窗
請注意,上方物件照片如有街景,為物件附近環境介紹,非物件本身。
編號:
1665774
複製分享
568
萬
25.23
萬/坪
貸款試算
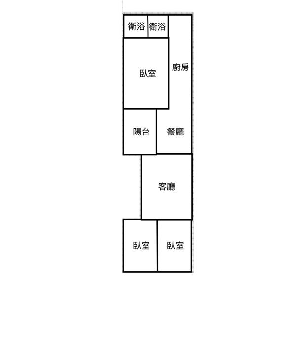
格局
3房 2 廳 2 衛
格局
屋齡
45.2 年
屋齡
權狀坪
22.51 坪
權狀坪
地址
三民區義華路
型態/類別
公寓 /住家
樓別/樓高
4 /5
主+附
22.51 坪
地坪
5.92 坪
大樂河堤店
(雄赫不動產有限公司)
高雄市三民區明仁路25號
07-3478777
立即預約看屋
線上提問
先生
小姐
方便聯絡時間
皆可
早上
下午
晚上
預約看屋
先生
小姐
線上提問
相似物件推薦
陽明商圈精美...
528
萬
建坪:
20.5
3
房
三民區九如一路
C30科工館...
458
萬
598萬
建坪:
25.96
3
房
三民區民和街
Y9高醫/熱...
598
萬
698萬
建坪:
21.88
3
房
三民區山東街
陽明國中⎪正...
498
萬
528萬
建坪:
20.5
依現況
三民區九如一路
建工商圈高應...
658
萬
建坪:
25.2
3
房
三民區建工路
陽明學區~即...
568
萬
668萬
建坪:
22.51
3
房
三民區義華路
國泰中都美寓...
580
萬
建坪:
25.22
3
房
三民區力行路
⭐陽明國中義...
588
萬
建坪:
22.51
3
房
三民區義華路
愛河河畔/低...
538
萬
575萬
建坪:
20.22
3
房
三民區中庸街
陽台進出|稀...
598
萬
建坪:
24.23
3
房
三民區延慶街
覺民商圈好機...
598
萬
建坪:
24.3
3
房
三民區覺民路
三民市場|雙...
538
萬
635萬
建坪:
20.22
3
房
三民區中庸街
近高醫/後驛...
498
萬
建坪:
21.2
3
房
三民區歸綏街
陽明商圈//...
568
萬
建坪:
22.51
3
房
三民區義華路
建興商圈|輕...
538
萬
578萬
建坪:
25.13
3
房
三民區華德街
物件詳細資料
點閱次數:1055次
房屋資訊
車位/備註
無
使用分區
商四
現況
空屋
建築結構
鋼筋混凝土RC
謄本資料
主建物
22.51 坪
附屬建物
公共設施
車位坪
地下室
地坪
5.92 坪
謄本主要用途
空白
*小數點取二位第三位無條件捨去
周邊資訊
鄰近學校(2公里內)
市立陽明國中,市立陽明國小
特色說明
近學校
◎採光好 格局方正 裝潢精美
◎近陽明國中 陽明國小 明星學區
◎近國道 南北往來便利
◎107年電線重拉
◎近覺民&陽明&義華商圈,生活機能好 ◎近三民運動中心 休閒育樂好方便
地圖/街景
實價登錄