新五甲特區鳳翔國小旁可停車美透天

138039.47萬/坪

五甲家樂福店(凱璿凱碩不動產有限公司)

07-7615999

 預約看屋  線上提問

新五甲特區鳳翔國小旁可停車美透天

1737732

077615999

買屋 / 高雄市 / 鳳山區 /
新五甲特區鳳翔國小旁可停車美透天
  • 相似物件推薦

物件詳細資料

點閱次數:492次

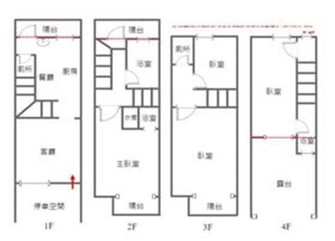
  • 房屋資訊

    車位/備註
    使用分區
    第三之一種住宅區
    現況
    空屋
    面臨路寬
    6 米
    建築結構
    鋼筋混凝土RC
  • 謄本資料

    主建物
    32.58 坪
    附屬建物
    2.37 坪
    公共設施
    車位坪
    地下室
    地坪
    15.37 坪
    謄本主要用途
    *小數點取二位第三位無條件捨去

周邊資訊

市場

肉豆公市場

鄰近學校(2公里內)

鳳翔國小,鳳翔國中

特色說明

  • 近學校
  • 近市場
  • 新五甲特區,鄰77期重劃區。 鄰88快速道路,規劃中的捷運黃線。
  • 明星學區:鳳翔國小、鳳翔國中,徒步約170公尺及達國小。 周邊綠地覆蓋率高,還
  • 鄰近五甲,全聯/家樂福/寶雅/9*9/大型傳統市場,百業林立,一應俱全。
  • 活巷進出,近巷口,一樓退縮,停車方便。
  • 汙水已完成,增建後陽台及頂樓前露台鐵皮,後牆穿鐵衣。

地圖/街景

實價登錄