鄰科工館一層一戶文青風邊間2樓美寓

76835.33萬/坪

五甲家樂福店(凱璿凱碩不動產有限公司)

07-7615999

 預約看屋  線上提問

鄰科工館一層一戶文青風邊間2樓美寓

1737733

077615999

買屋 / 高雄市 / 三民區 /
鄰科工館一層一戶文青風邊間2樓美寓
  • 相似物件推薦

物件詳細資料

點閱次數:687次

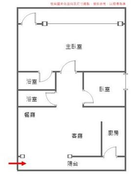
  • 房屋資訊

    車位/備註
    使用分區
    第四種住宅區
    現況
    空屋
    面臨路寬
    6 米
    建築結構
    鋼筋混凝土
    每層戶數
    1 戶
  • 謄本資料

    主建物
    18.58 坪
    附屬建物
    3.16 坪
    公共設施
    車位坪
    地下室
    地坪
    6.83 坪
    謄本主要用途
    公寓
    *小數點取二位第三位無條件捨去

周邊資訊

捷運‧公車站牌(1公里內)

捷運站:樹德家商站 (734 公尺)
捷運站:科工館站 (904 公尺)

市場

果菜市場

鄰近學校(2公里內)

市立正興國中,市立民族國小

公園

科工館公園

特色說明

  • 近學校
  • 近市場
  • 近捷運站
  • 巷口即達占地約19公頃的科工館及綠園道。
  • 鄰近後驛商圈、科工館、市場、高醫、百貨等車程皆在約10分左右(依個人車程為準)。
  • 坐擁交通、學區、商圈、綠地等多項優勢條件。 鄰近國道、省道及台鐵站,周邊還有輕軌
  • 明星學區:正興國中,鄰近學區,約550~700公尺即達。
  • 一層一戶,陽台進出,另一個陽台外推,原3改2,室內使用空間大無限。 使用進口磁磚及日本品牌氣密窗。

地圖/街景

實價登錄