C1五甲瑞隆商圈大面寬邊間車庫透天

125854.68萬/坪

孟子自由店(凱璿發貴不動產有限公司)

07-3506161

 預約看屋  線上提問

C1五甲瑞隆商圈大面寬邊間車庫透天

0093877

073506161

買屋 / 高雄市 / 前鎮區 /
C1五甲瑞隆商圈大面寬邊間車庫透天
  • 相似物件推薦

物件詳細資料

點閱次數:301次

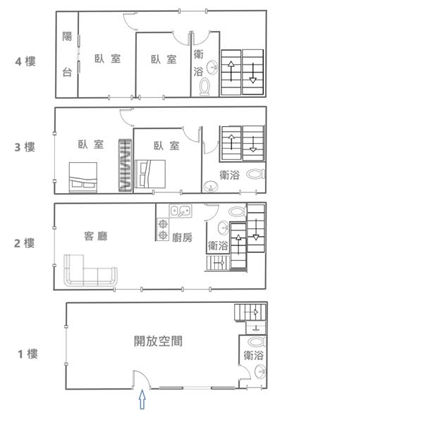
  • 房屋資訊

    車位/備註
    入門朝向
    座南 朝北
    使用分區
    第三種住宅區、第三種商業區
    現況
    空屋
    面臨路寬
    4 米
    建築結構
    加強磚造
  • 謄本資料

    主建物
    23 坪
    附屬建物
    公共設施
    車位坪
    地下室
    地坪
    20.26 坪
    謄本主要用途
    住商用
    *小數點取二位第三位無條件捨去

周邊資訊

捷運‧公車站牌(1公里內)

捷運站:C1籬仔內站 (284 公尺)
捷運站:凱旋瑞田站 (986 公尺)
捷運站:凱旋二聖站 (857 公尺)
捷運站:輕軌機廠站 (432 公尺)

市場

崗山仔憲德市場

鄰近學校(2公里內)

市立瑞祥國小,瑞祥國中

商圈

瑞隆商圈

特色說明

  • 近學校
  • 近市場
  • 近捷運站
  • 近商圈
  • 活巷進出,屋內翻新整理,精緻裝潢即可入住好方便
  • 邊間採光通風佳,增建至四樓使用空間大
  • 一樓自有車庫可停雙車,也可另隔孝親房或工作室
  • 位五甲精華瑞隆商圈,商店林立採買便利,生活機能優良
  • 近輕軌籬仔內站、國道1、88快速道路,交通便捷 鄰近明星瑞祥國中小學區,家長接送輕鬆

地圖/街景

實價登錄