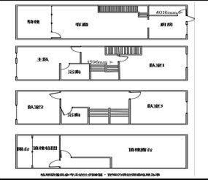
[仁武]近商圈國十騎樓停車寧靜透天屋況佳採光通風

138827.79萬/坪

十全博愛店(凱璿凱樺不動產事業有限公司)

07-3131888

 預約看屋  線上提問

[仁武]近商圈國十騎樓停車寧靜透天屋況佳採光通風

1782945

073131888

買屋 / 高雄市 / 仁武區 /
[仁武]近商圈國十騎樓停車寧靜透天屋況佳採光通風
  • 相似物件推薦

物件詳細資料

點閱次數:394次

  • 房屋資訊

    車位/備註
    入門朝向
    座西南 朝東北
    使用分區
    住宅區
    現況
    空屋
    面臨路寬
    12 米
    建築結構
    鋼筋混凝土
  • 謄本資料

    主建物
    43 坪
    附屬建物
    6.95 坪
    公共設施
    車位坪
    地下室
    地坪
    18.26 坪
    謄本主要用途
    住商用
    *小數點取二位第三位無條件捨去

周邊資訊

市場

仁武市場

鄰近學校(2公里內)

市立仁武國小,仁武國中

公園

文學公園

特色說明

  • 近學校
  • 近市場
  • 近公園
  • ◎鄰仁武商圈,戶政,區公所
  • ◎近國道十號仁武交流道
  • ◎視野開闊,寧靜愜意住宅區
  • ◎騎樓好停車
  • ◎屋況好,無過多裝潢,採光通風佳

地圖/街景

實價登錄