橋頭新市鎮★中鋼欣橋之心★質感兩房車位

118836.45萬/坪

總圖凱璿店(凱璿不動產事業股份有限公司亞灣區分公司)

07-5361688

 預約看屋  線上提問

橋頭新市鎮★中鋼欣橋之心★質感兩房車位

1778474

075361688

買屋 / 高雄市 / 橋頭區 /
橋頭新市鎮★中鋼欣橋之心★質感兩房車位
欣橋之心
  • 相似物件推薦

物件詳細資料

點閱次數:183次

  • 房屋資訊

    車位/備註
    公設車位 坡道/機械
    管理費
    2120元/月繳
    使用分區
    第五種住宅區
    現況
    空屋
    建築結構
    鋼筋混凝土RC
    電梯總數
    2
    每層戶數
    5 戶
  • 謄本資料

    主建物
    16.84 坪
    附屬建物
    2.18 坪
    公共設施
    8.73 坪
    車位坪
    4.83 坪
    地下室
    地坪
    4.8 坪
    謄本主要用途
    *小數點取二位第三位無條件捨去

周邊資訊

捷運‧公車站牌(1公里內)

捷運站:R22青埔站 (1431 公尺)

市場

橋頭市場

鄰近學校(2公里內)

市立甲圍國小,市立橋頭國中

公園

都會公園

特色說明

  • 近學校
  • 近市場
  • 近捷運站
  • 近公園
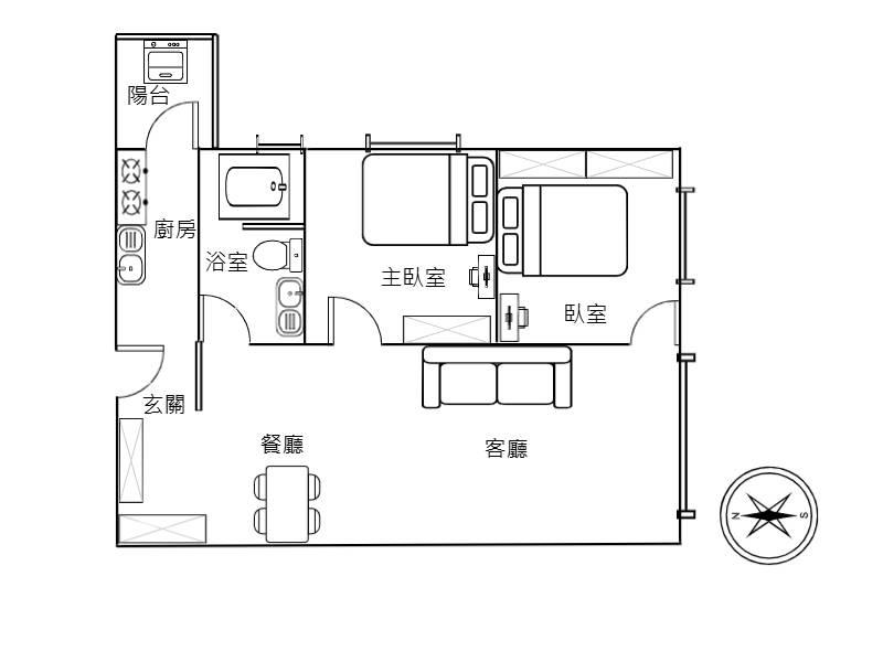
  • ★格局方正,衛浴開窗,採光明亮通風佳 ★質感裝潢,屋況維持良好,可直接入住!
  • ★公設完善齊全,回家就像度假 ★近橋頭青埔捷運站,交通超便利
  • ★橋頭科學園區、台積電,科技聚落,高科技人才匯集,投資自住最佳首選! ★面都會

    地圖/街景

    實價登錄