C28高雄高工/高應大/建工正忠商圏/收租透天

148062.94萬/坪

十全博愛店(凱璿凱樺不動產事業有限公司)

0978002013

 預約看屋  線上提問

C28高雄高工/高應大/建工正忠商圏/收租透天

0997797

蔣綵淨0978002013

C28高雄高工/高應大/建工正忠商圏/收租透天
  • 相似物件推薦

物件詳細資料

點閱次數:369次

  • 房屋資訊

    車位/備註
    入門朝向
    座西 朝東
    使用分區
    第四種住宅區
    現況
    出租
    面臨路寬
    6 米
    建築結構
    加強磚造
  • 謄本資料

    主建物
    23.51 坪
    附屬建物
    公共設施
    車位坪
    地下室
    地坪
    22.68 坪
    謄本主要用途
    住宅
    *小數點取二位第三位無條件捨去

周邊資訊

捷運‧公車站牌(1公里內)

捷運站:高雄高工站 (646 公尺)
捷運站:樹德家商站 (884 公尺)

市場

新民市場

鄰近學校(2公里內)

市立莊敬國小,市立鼎金國中

公園

本和公園

特色說明

  • 近學校
  • 近市場
  • 近捷運站
  • 近公園
  • ◎C28高雄高工輕軌站/國道/建工路交通便利
  • ◎建工商圏/大昌.正忠商圏/生活機能方便超優
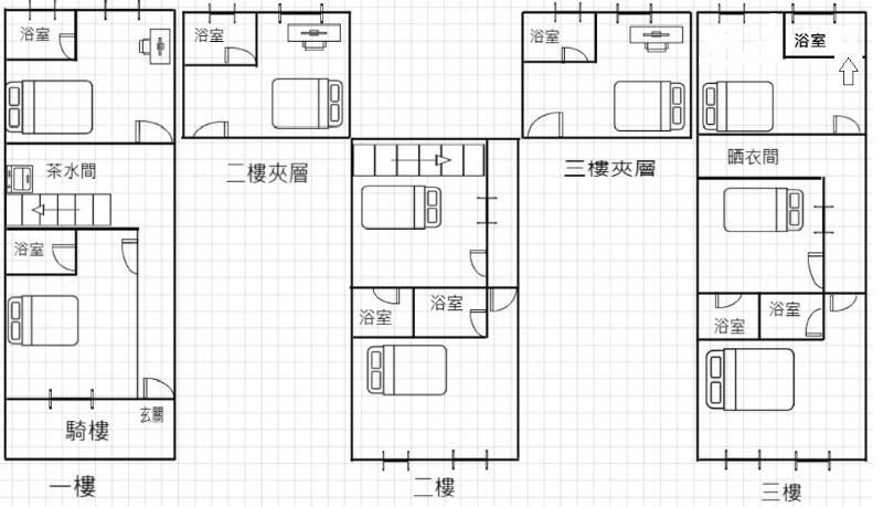
  • ◎離高雄高工約200公尺/九間房間皆套房/近高科大好出租
  • ◎附獨立型偵煙探測器安全有保障/室內冷氣設備新穎
  • ◎屋況佳 可做現成包租公 增建至三樓

地圖/街景

實價登錄