稀有!仁武八德商圈大面寬金店面
3980
萬
72.99
萬/坪
詳細資料
周邊
特色說明
地圖街景
實價登錄
陽光美術店
(凱璿品勝不動產有限公司)
07-5531717
預約看屋
線上提問
稀有!仁武八德商圈大面寬金店面
0482060
075531717
預約
提問
服務據點
加入我們
人才招募
店專區
留言諮詢
物件追蹤清單
Google搜尋
一般會員
帳號
此欄位必填!
密碼
此欄位必填!
登入
送出註冊/登入視同您已閱讀,並同意
權利義務說明內容
註冊
|
忘記密碼
此欄位必填!
此欄位必填!
此欄位必填!
登入
忘記密碼
|
忘記密碼
Email
簡訊
請您輸入店代號及帳號,我們會儘速將您的密碼傳送至您的信箱或手機簡訊。
店代號
帳 號
送出
凱璿不動產事業
[首頁]
首頁
買屋
找售案
新成屋
買方需求留言
賣屋
賣方需求留言
租屋
找租案
出租需求留言
關於凱璿
公司簡介
教育訓練中心
人才招募
得獎紀錄
隱私權聲明
活動資訊
活動花絮
房產動態
特約代書
建地價格試算
買屋
/
高雄市
/
仁武區
/
稀有!仁武八德商圈大面寬金店面
請注意,上方物件照片如有街景,為物件附近環境介紹,非物件本身。
編號:
0482060
3980
萬
72.99
萬/坪
貸款試算
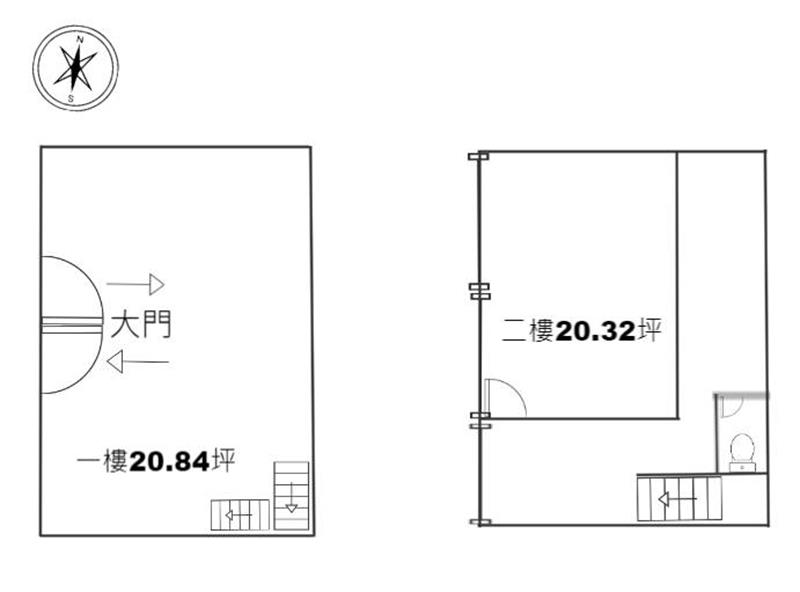
格局
1 廳 1 衛
格局
建坪
54.53 坪
建坪
地址
仁武區八德南路
型態/類別
大樓 /店面
樓別/樓高
1-2 /15
主+附
41.15 坪
地坪
8.05 坪
陽光美術店
(凱璿品勝不動產有限公司)
高雄市鼓山區美術東四路246號
07-5531717
立即預約看屋
線上提問
先生
小姐
方便聯絡時間
皆可
早上
下午
晚上
我同意條款
隱私權聲明
預約看屋
先生
小姐
我同意條款
隱私權聲明
線上提問
相似物件推薦
仁武八卦寮/...
3980
萬
建坪:
54.53
開放空間
仁武區八德南路
物件詳細資料
點閱次數:51次
房屋資訊
車位/備註
無
管理費
3000元/月繳
使用分區
社區中心商業區
現況
空屋
建築結構
鋼筋混凝土
謄本資料
主建物
41.15 坪
附屬建物
公共設施
13.38 坪
車位坪
地下室
地坪
8.05 坪
謄本主要用途
店舖,集合住宅
*小數點取二位第三位無條件捨去
特色說明
面寬約7米,廣告顯眼
澄德重劃區,未來性高
近國十國一,交通便利
人潮車潮多,生意好做
稀有釋出,僅四間店面 出租自用皆適合
地圖/街景
實價登錄