楠梓科技產業園區首排面公園20米臨路透天住店

256040.31萬/坪

德賢德惠店(凱璿成家不動產有限公司)

07-3627711

 預約看屋  線上提問

楠梓科技產業園區首排面公園20米臨路透天住店

0458927

073627711

買屋 / 高雄市 / 楠梓區 /
楠梓科技產業園區首排面公園20米臨路透天住店
  • 相似物件推薦

物件詳細資料

點閱次數:218次

  • 房屋資訊

    車位/備註
    入門朝向
    座東南 朝西北
    使用分區
    第五種住宅區
    現況
    自住(用)
    面臨路寬
    20 米
    建築結構
    鋼筋混凝土
  • 謄本資料

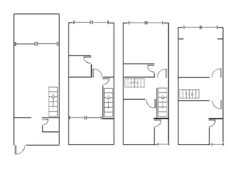
    主建物
    54.88 坪
    附屬建物
    8.62 坪
    公共設施
    車位坪
    地下室
    地坪
    22.55 坪
    謄本主要用途
    住商用
    *小數點取二位第三位無條件捨去

周邊資訊

捷運‧公車站牌(1公里內)

捷運站:R19楠梓科技園區站 (907 公尺)

市場

亞洲高雄城南區市場

鄰近學校(2公里內)

市立加昌國小,市立國昌國中

公園

右昌6號公園

特色說明

  • 近學校
  • 近市場
  • 近捷運站
  • 近公園
  • ◎楠梓科技產業園區首排
  • ◎面公園4米大面寬20米臨路透天住店
  • ◎正四樓透天,屋況極佳,可直接入住。
  • ◎5房有4套房,三代同堂也能保有個人空間。
  • ◎住店合一,事業與生活兼顧。 ◎右昌6號公園首排,走路即可到右昌國小與樂群生活圈,成家育兒優質首選。

地圖/街景

實價登錄