明誠中學設計師的家/溫馨大坪數 / 3房

69821.08萬/坪

巨蛋凱璿店(凱璿不動產事業股份有限公司北高雄分公司)

07-3437000

 預約看屋  線上提問

明誠中學設計師的家/溫馨大坪數 / 3房

0982419

073437000

買屋 / 高雄市 / 鼓山區 /
明誠中學設計師的家/溫馨大坪數 / 3房
  • 相似物件推薦

物件詳細資料

點閱次數:93次

  • 房屋資訊

    車位/備註
    入門朝向
    座西南 朝東北
    使用分區
    住三
    現況
    空屋
    面臨路寬
    20 米
    建築結構
    鋼筋混凝土
  • 謄本資料

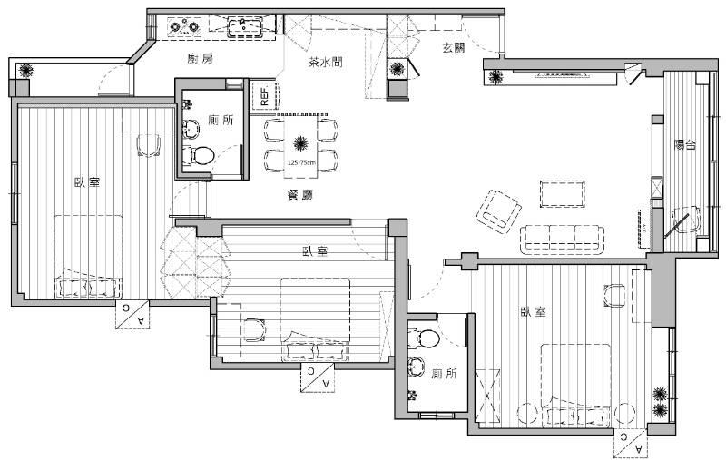
    主建物
    33.11 坪
    附屬建物
    公共設施
    車位坪
    地下室
    地坪
    17.87 坪
    謄本主要用途
    公寓、住宅
    *小數點取二位第三位無條件捨去

周邊資訊

市場

華豐市場

鄰近學校(2公里內)

市立勝利國小,市立大義國中

特色說明

  • 近學校
  • 近市場
  • ◎設計師的家,省去裝修費/馬上住
  • ◎室內大坪數33坪/大客廳/大三房 採光通風
  • ◎近美術館 /凹子底森林公園/巨蛋商圈!
  • ◎近瑞豐夜市/明誠中學生活機能便利讚
  • ◎出得繁華,入得寧靜,居住安靜無車流聲又大空間舒適

地圖/街景

實價登錄