台積電世運體育場蔚藍海岸大美3房

99824.91萬/坪

中華明誠店(凱璿不動產事業股份有限公司中華分公司)

07-5520006

 預約看屋  線上提問

台積電世運體育場蔚藍海岸大美3房

1660813

075520006

買屋 / 高雄市 / 楠梓區 /
台積電世運體育場蔚藍海岸大美3房
蔚藍海岸
  • 相似物件推薦

物件詳細資料

點閱次數:435次

  • 房屋資訊

    車位/備註
    管理費
    2100元/月繳
    入門朝向
    座東 朝西
    使用分區
    第四種住宅區
    現況
    空屋
    面臨路寬
    28 米
    建築結構
    鋼筋混凝土
    電梯總數
    1
    每層戶數
    2 戶
  • 謄本資料

    主建物
    29.76 坪
    附屬建物
    3.94 坪
    公共設施
    6.35 坪
    車位坪
    地下室
    地坪
    5.08 坪
    謄本主要用途
    住家用
    *小數點取二位第三位無條件捨去

周邊資訊

捷運‧公車站牌(1公里內)

捷運站:R18油廠國小站 (927 公尺)

市場

莒光市場

鄰近學校(2公里內)

市立莒光國小,市立右昌國中

公園

世運體育場

特色說明

  • 近學校
  • 近市場
  • 近捷運站
  • 近公園
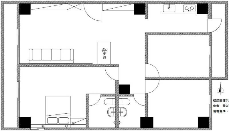
  • 1.全屋整修翻新,添傢俱家電即入住。
  • 2.前後大陽台,邊間三面通風採光佳。
  • 3.低公設、格局方正,雙衛浴開窗不潮濕。
  • 4.近捷運油廠國小站/世運站,機車約5分鐘即到。
  • 5.近世運運動場/台17線/海軍醫院/海軍軍區/加工區/台積電。

地圖/街景

實價登錄