⭐禾承建設⭐重金誠意首推⭐燙金電梯店墅A2戶⭐

385844.29萬/坪

十全博愛店(凱璿凱樺不動產事業有限公司)

0978002013

 預約看屋  線上提問

⭐禾承建設⭐重金誠意首推⭐燙金電梯店墅A2戶⭐

0012358

蔣綵淨0978002013

⭐禾承建設⭐重金誠意首推⭐燙金電梯店墅A2戶⭐
  • 相似物件推薦

物件詳細資料

點閱次數:70次

  • 房屋資訊

    車位/備註
    使用分區
    第三種住宅區
    現況
    空屋
    面臨路寬
    20 米
    建築結構
    鋼筋混凝土
    電梯總數
    1
  • 謄本資料

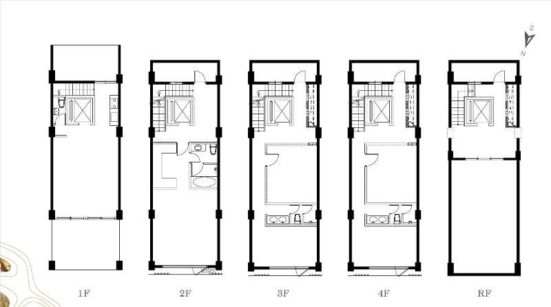
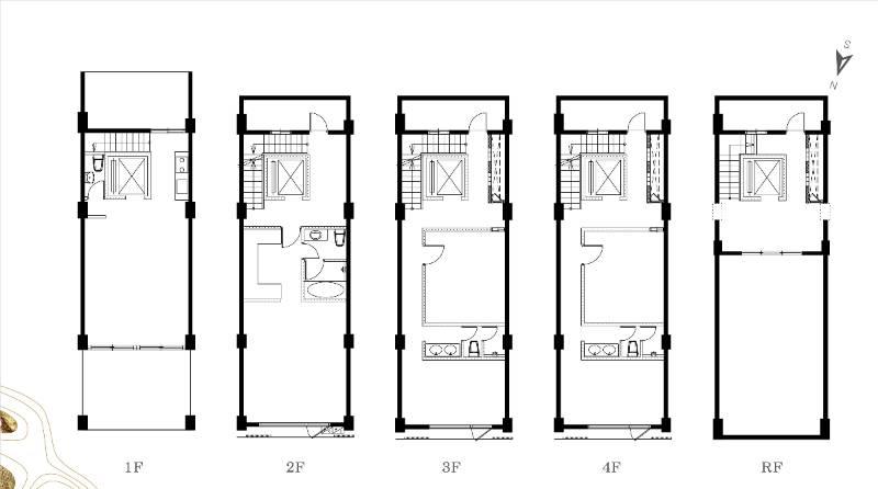
    主建物
    79.59 坪
    附屬建物
    7.53 坪
    公共設施
    車位坪
    地下室
    地坪
    22.99 坪
    謄本主要用途
    *小數點取二位第三位無條件捨去

周邊資訊

市場

全聯

鄰近學校(2公里內)

市立桂林國小,市立明義國中

公園

桂林公園

特色說明

  • 近學校
  • 近市場
  • 近公園
  • 💖豪奢上選建材.電梯5房大道燙金店墅
  • 💖林內、波蘭amica廚具精品 採用日系血統廚具
  • 💖河堤綠廊第一排,中安大道上電梯大店墅
  • 💖近SKM Park草衙購物中心
  • 💖小港機場、國門特區,接軌世界跨越國境一站通 💖近88接軌國道南來北往超便利

地圖/街景

實價登錄