仁武八卦寮臨路傳統格局車墅(不淹水)

198834.88萬/坪

左營重信華夏店(凱璿超越不動產有限公司)

07-3431010

 預約看屋  線上提問

仁武八卦寮臨路傳統格局車墅(不淹水)

0089896

073431010

買屋 / 高雄市 / 仁武區 /
仁武八卦寮臨路傳統格局車墅(不淹水)
  • 相似物件推薦

物件詳細資料

點閱次數:223次

  • 房屋資訊

    車位/備註
    入門朝向
    座西南 朝東北
    使用分區
    第三種住宅區
    現況
    空屋
    面臨路寬
    10 米
    建築結構
    鋼筋混凝土造
  • 謄本資料

    主建物
    45.81 坪
    附屬建物
    11.18 坪
    公共設施
    車位坪
    地下室
    地坪
    24.76 坪
    謄本主要用途
    住家用
    *小數點取二位第三位無條件捨去

周邊資訊

市場

全聯

鄰近學校(2公里內)

市立八卦國小,市立大灣國中

公園

北屋滯洪公園

VR720/特色

  • 近學校
  • 近市場
  • 近國道1.10、距左營高鐵10分鐘車程,交通超便捷
  • 全聯.寶雅.星巴克生活超便利
  • 活巷進出/鬧中取靜,區域地勢高不淹水
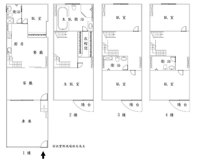
  • 一樓為客餐廳還有孝親房
  • 屋主五年前翻修衛浴.地板更新

地圖/街景

實價登錄