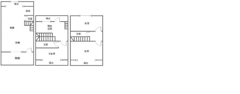
全新翻修三樓透天 潮州鬧區稀有釋出

118036.94萬/坪

文山文衡店(凱璿不動產事業股份有限公司文山分公司)

07-7670555

 預約看屋  線上提問

全新翻修三樓透天 潮州鬧區稀有釋出

1805824

077670555

買屋 / 屏東縣 / 潮州鎮 /
全新翻修三樓透天 潮州鬧區稀有釋出
  • 相似物件推薦

物件詳細資料

點閱次數:29次

  • 房屋資訊

    車位/備註
    入門朝向
    座東南 朝西北
    使用分區
    住宅區
    現況
    空屋
    面臨路寬
    6 米
    建築結構
    加強磚造
  • 謄本資料

    主建物
    31.94 坪
    附屬建物
    公共設施
    車位坪
    地下室
    地坪
    25.12 坪
    謄本主要用途
    住商用
    *小數點取二位第三位無條件捨去

周邊資訊

市場

傳統市場

鄰近學校(2公里內)

縣立潮州國小,縣立潮州國中

公園

社區公園

特色說明

  • 近學校
  • 近市場
  • 近公園
  • ◎屋況新穎|全屋翻新增建至三樓,水電衛浴全更新
  • ◎商圈便利|步行可達延平商圈、中山路商圈,餐飲採買超方便
  • ◎交通順暢|近潮州火車站、客運總站、潮州交流道

    地圖/街景

    實價登錄