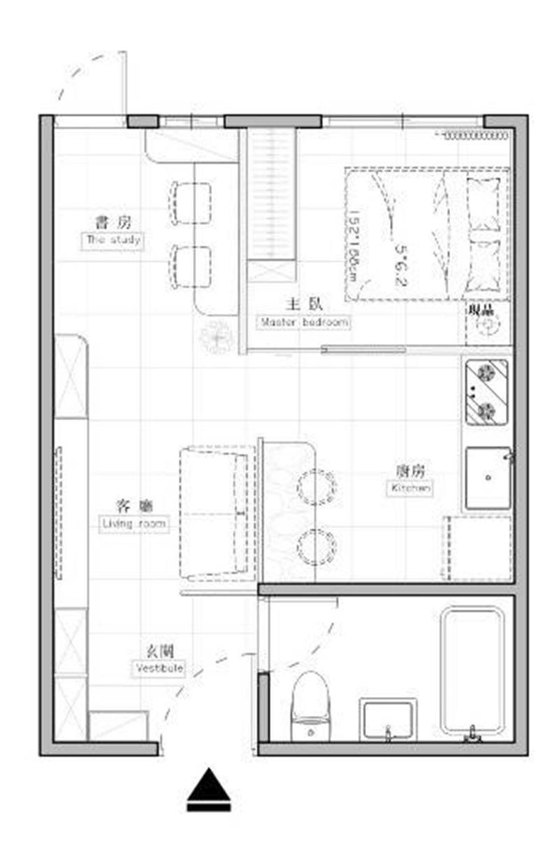
愛情河左岸、2房平車裝潢屋即可入住

119842.22萬/坪

十全博愛店(凱璿凱樺不動產事業有限公司)

0978002013

 預約看屋  線上提問

愛情河左岸、2房平車裝潢屋即可入住

AG1796663

蔣綵淨0978002013

愛情河左岸、2房平車裝潢屋即可入住
愛情河左岸
  • 相似物件推薦

物件詳細資料

點閱次數:157次

  • 房屋資訊

    車位/備註
    公設車位 坡道/平面
    使用分區
    第五種商業區
    現況
    空屋
    建築結構
    鋼骨鋼筋混凝土、鋼筋混凝土、鋼骨造
    電梯總數
    5
    每層戶數
    20 戶
  • 謄本資料

    主建物
    11.7 坪
    附屬建物
    3.26 坪
    公共設施
    13.41 坪(內含車位:5.41坪)
    車位坪
    地下室
    地坪
    1.21 坪
    謄本主要用途
    集合住宅
    *小數點取二位第三位無條件捨去

周邊資訊

捷運‧公車站牌(1公里內)

捷運站:O2鹽埕埔站 (736 公尺)
捷運站:光榮碼頭站 (690 公尺)
捷運站:真愛碼頭站 (391 公尺)
捷運站:駁二大義站 (820 公尺)
捷運站:前金站 (800 公尺)

市場

前金市場

鄰近學校(2公里內)

市立前金國小,市立前金國中

特色說明

  • 近學校
  • 近市場
  • 近捷運站
  • ◎1.市中心地段精華地段
  • ◎2.近真愛碼頭輕軌站
  • ◎3.格局方正採光通風佳
  • ◎4.駁二特區,商圈完善
  • ◎5.生活機能與遊憩休閒兼備 ◎6.飯店式館管理,公設齊全 ◎7.小資豪宅低調奢華 ◎8.全屋裝潢即可入住

地圖/街景

實價登錄