鄰站前特區幸福川現代無印風陽台套房

33834.35萬/坪

五甲家樂福店(凱璿凱碩不動產有限公司)

07-7615999

 預約看屋  線上提問

鄰站前特區幸福川現代無印風陽台套房

1789476

077615999

買屋 / 高雄市 / 三民區 /
鄰站前特區幸福川現代無印風陽台套房
  • 相似物件推薦

物件詳細資料

點閱次數:134次

  • 房屋資訊

    車位/備註
    管理費
    560元/月繳
    使用分區
    第四種商業區/道路用地
    現況
    空屋
    建築結構
    鋼筋混凝土
    電梯總數
    2
    每層戶數
    10 戶
  • 謄本資料

    主建物
    6.69 坪
    附屬建物
    1.24 坪
    公共設施
    1.9 坪
    車位坪
    地下室
    地坪
    1.05 坪
    謄本主要用途
    *小數點取二位第三位無條件捨去

周邊資訊

捷運‧公車站牌(1公里內)

捷運站:R11高雄車站站 (465 公尺)
捷運站:美麗島站 (744 公尺)
捷運站:信義國小站 (907 公尺)

鄰近學校(2公里內)

市立七賢國小,市立新興高中

公園

文化中心

商圈

火車站生活圈

特色說明

  • 近學校
  • 近捷運站
  • 近商圈
  • 高雄市中心,超精華地段,幸福河川水岸運河。 荷蘭建築團隊Mecanoo所規劃打
  • 未來規劃三鐵共構,交通網絡便利。 周邊商圈多,文武百業,應有盡有。
  • 大樓規劃早班管理室,代收掛號包裹…..。 免追垃圾車,垃圾放置梯間即可。(三/
  • 地下室、一樓機車位隨到隨停。
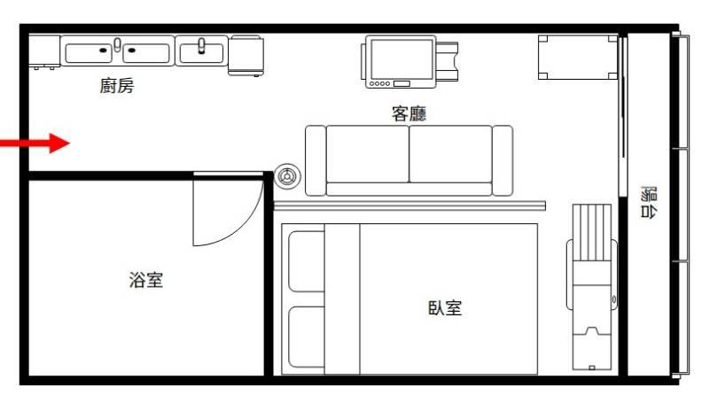
  • 中性色系加上簡約風格,隔出機能領域,有廚房、客廳,還有一個稀有的大陽台。 完美的空間設計,沈澱靜思高坪效的居家。

地圖/街景

實價登錄