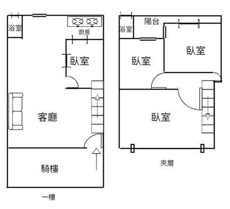
小港重新整理(有孝親房)騎樓停車公寓一樓+夾層

98840.51萬/坪

高科大建工(凱璿樂屋不動產有限公司)

07-3951018

 預約看屋  線上提問

小港重新整理(有孝親房)騎樓停車公寓一樓+夾層

0451576

073951018

買屋 / 高雄市 / 小港區 /
小港重新整理(有孝親房)騎樓停車公寓一樓+夾層
  • 相似物件推薦

物件詳細資料

點閱次數:42次

  • 房屋資訊

    車位/備註
    使用分區
    第三種住宅區
    現況
    空屋
    建築結構
    鋼筋混凝土
  • 謄本資料

    主建物
    24.39 坪
    附屬建物
    公共設施
    車位坪
    地下室
    地坪
    6.48 坪
    謄本主要用途
    *小數點取二位第三位無條件捨去

周邊資訊

捷運‧公車站牌(1公里內)

捷運站:R4高雄國際機場站 (940 公尺)

鄰近學校(2公里內)

市立小港國小,市立小港國中

特色說明

  • 近學校
  • 近捷運站
  • 位於草衙與小港間,生活機能便利。
  • 距機場及沿海路約600公尺,出國便利。
  • 室內空間及房間大,居住舒適。
  • 走路約10分鐘即可到小港國中,就學超方便。
  • 一卡皮箱、即可入住。

地圖/街景

實價登錄