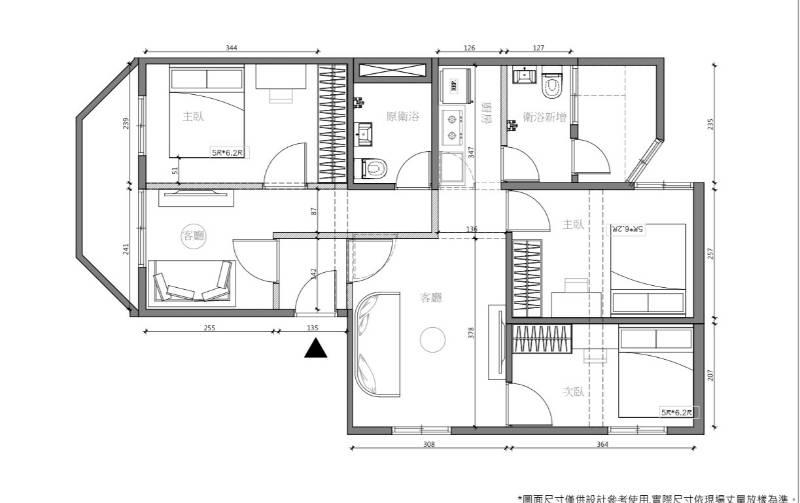
瑞隆商圈翻新質感採光雙陽台大三房

53821.99萬/坪

文化四維店(凱璿冠鈞不動產有限公司)

07-7158777

 預約看屋  線上提問

瑞隆商圈翻新質感採光雙陽台大三房

0501207

077158777

買屋 / 高雄市 / 前鎮區 /
瑞隆商圈翻新質感採光雙陽台大三房
  • 相似物件推薦

物件詳細資料

點閱次數:91次

  • 房屋資訊

    車位/備註
    現況
    空屋
    面臨路寬
    2 米
    建築結構
    RC
    每層戶數
    1 戶
  • 謄本資料

    主建物
    24.46 坪
    附屬建物
    公共設施
    車位坪
    地下室
    地坪
    9.61 坪
    謄本主要用途
    *小數點取二位第三位無條件捨去

周邊資訊

捷運‧公車站牌(1公里內)

捷運站:輕軌機廠站 (928 公尺)

市場

肉豆公市場

鄰近學校(2公里內)

市立瑞豐國小,市立瑞豐國中

特色說明

  • 近學校
  • 近市場
  • 近捷運站
  • ①近瑞隆商圈,區域採買交通方便,生活機能成熟
  • ②一層一戶,戶數少,社區單純
  • ③頂樓防水已重做,公寓稀有雙陽台物件,房間皆開窗
  • ④管線已全新整理,廁所防水皆施作完成
  • ⑤室內採用進口瓷磚,用心整理,屋主誠售

地圖/街景

實價登錄