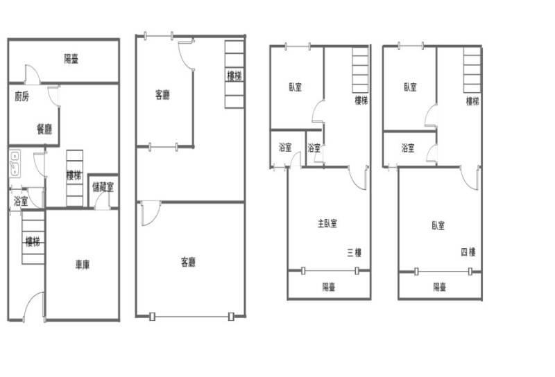
左營捷運高鐵大地坪邊間六房車墅稀有釋出

319837.02萬/坪

益群藍田店(凱璿長虹不動產有限公司)

07-3622555

 預約看屋  線上提問

左營捷運高鐵大地坪邊間六房車墅稀有釋出

0035952

073622555

買屋 / 高雄市 / 左營區 /
左營捷運高鐵大地坪邊間六房車墅稀有釋出
  • 相似物件推薦

物件詳細資料

點閱次數:35次

  • 房屋資訊

    車位/備註
    使用分區
    第四種住宅區
    現況
    空屋
    面臨路寬
    6 米
    建築結構
    鋼筋混凝土RC
  • 謄本資料

    主建物
    76.5 坪
    附屬建物
    9.88 坪
    公共設施
    車位坪
    地下室
    地坪
    35.27 坪
    謄本主要用途
    住家用
    *小數點取二位第三位無條件捨去

周邊資訊

捷運‧公車站牌(1公里內)

捷運站:R15生態園區站 (588 公尺)

市場

自由市場

鄰近學校(2公里內)

市立新民國小,市立左營國中

公園

博愛公園

特色說明

  • 近學校
  • 近市場
  • 近捷運站
  • 近公園
  • 1.邊間建坪76.5,現況六房,35坪大地坪,稀有物件釋出。
  • 2.格局方正,通風採光佳,屋況良好。
  • 3.雙捷運,近公園,崇德商圈、自由市場及健身房等,生活機能完整。
  • 4.新民國小,左營國中,學區完整走路上學。
  • 5.五分鐘上國道及台17線,南北往來便利。 6.左營區寸土寸金,有地斯有財。

地圖/街景

實價登錄