屏東內埔市區大地坪全新未住雙車墅

159826.43萬/坪

大樂河堤店(雄赫不動產有限公司)

07-3478777

 預約看屋  線上提問

屏東內埔市區大地坪全新未住雙車墅

1025369

073478777

買屋 / 屏東縣 / 內埔鄉 /
屏東內埔市區大地坪全新未住雙車墅
  • 相似物件推薦

物件詳細資料

點閱次數:34次

  • 房屋資訊

    車位/備註
    使用分區
    住宅區
    現況
    空屋
    建築結構
    鋼筋混凝土造
  • 謄本資料

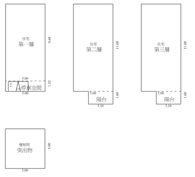
    主建物
    57.47 坪
    附屬建物
    3 坪
    公共設施
    車位坪
    地下室
    地坪
    55.55 坪
    謄本主要用途
    其他
    *小數點取二位第三位無條件捨去

周邊資訊

鄰近學校(2公里內)

縣立內埔國中,縣立內埔國小

特色說明

  • 近學校
  • ◎近內埔市區 生活機能方便 ◎附近有寶雅 燦坤 全聯 ◎星巴克 各式美食 餐廳林立 ◎離美和科技大學很近 ◎周圍都是新蓋的透天車墅 ◎周圍都是新蓋的透天車墅 ◎全新未曾居住過 可停3部車 ◎面寬格局室內空間寬敞

地圖/街景

實價登錄