楠梓右昌#燙金店住#出租自用都適合

238033.18萬/坪

楠梓科技德賢店(凱璿誠信不動產有限公司)

07-3648858

 預約看屋  線上提問

楠梓右昌#燙金店住#出租自用都適合

0490077

073648858

買屋 / 高雄市 / 楠梓區 /
楠梓右昌#燙金店住#出租自用都適合
  • 相似物件推薦

物件詳細資料

點閱次數:59次

  • 房屋資訊

    車位/備註
    使用分區
    住三
    現況
    空屋
    建築結構
    RC
  • 謄本資料

    主建物
    54.61 坪
    附屬建物
    17.12 坪
    公共設施
    車位坪
    地下室
    地坪
    23.29 坪
    謄本主要用途
    住商用
    *小數點取二位第三位無條件捨去

周邊資訊

市場

右昌民營市場

鄰近學校(2公里內)

市立右昌國小,市立右昌國中

公園

9號公園

特色說明

  • 近學校
  • 近市場
  • 近公園
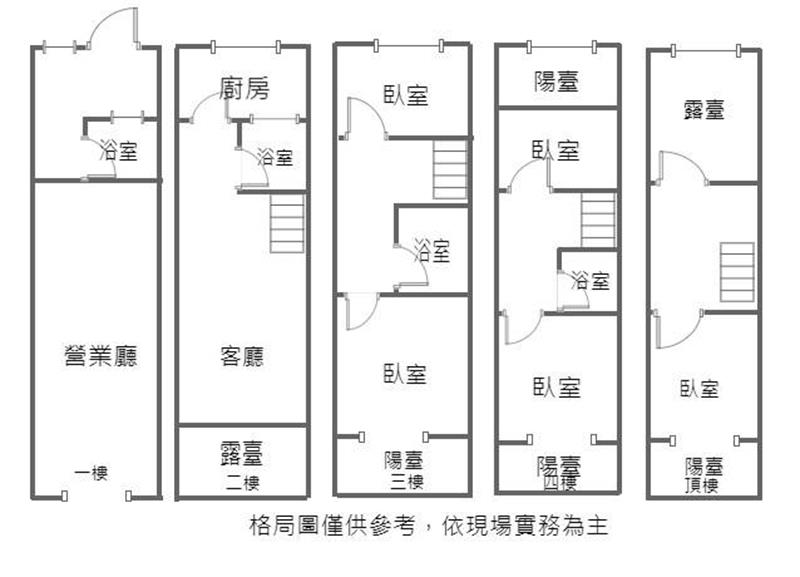
  • ◎屋主探吉起家厝
  • ◎前後增建至滿使用空間大
  • ◎一樓可做店面、樓上出租或自用都可以
  • ◎近台17未來可期
  • ◎旁邊就有蝦皮店到店、7-11 ◎一家三代可同堂。

地圖/街景

實價登錄