愛河公園首排市議會站7.5米大面寬店面

286862.77萬/坪

中華明誠店(凱璿不動產事業股份有限公司中華分公司)

07-5520006

 預約看屋  線上提問

愛河公園首排市議會站7.5米大面寬店面

1660722

075520006

買屋 / 高雄市 / 前金區 /
愛河公園首排市議會站7.5米大面寬店面
律司樓
  • 相似物件推薦

物件詳細資料

點閱次數:33次

  • 房屋資訊

    車位/備註
    公設車位 昇降/機械
    管理費
    5103元/月繳
    入門朝向
    座東 朝西
    使用分區
    第三種特定商業專用區
    現況
    自住(用)
    建築結構
    鋼筋混凝土
  • 謄本資料

    主建物
    28.04 坪
    附屬建物
    1.38 坪
    公共設施
    5.35 坪(內含車位:10.9坪)
    車位坪
    10.9 坪
    地下室
    地坪
    7.18 坪
    謄本主要用途
    商業用
    *小數點取二位第三位無條件捨去

周邊資訊

捷運‧公車站牌(1公里內)

捷運站:O4前金站 (471 公尺)
捷運站:中央公園站 (959 公尺)
捷運站:鹽埕埔站 (860 公尺)
捷運站:光榮碼頭站 (979 公尺)
捷運站:真愛碼頭站 (729 公尺)

市場

前金市場

鄰近學校(2公里內)

市立前金國小,市立前金國中

公園

中央公園

特色說明

  • 近學校
  • 近市場
  • 近捷運站
  • 近公園
  • 近愛河,走路至捷運前金站8分鐘
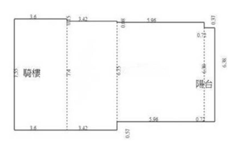
  • 邊間面寬7.55米,深12.9米,展示效果一流
  • 室內增建約20坪的夾層,使用空間效益大
  • 正對公園綠意,適合事務所或質感餐飲
  • 附4個車位,開店置產首選!

地圖/街景

實價登錄