鄰鳳山國中捷運日系侘寂風孝親房透天

145857.84萬/坪

博愛凱璿店(凱璿不動產事業股份有限公司龍華分公司)

0973733125

 預約看屋  線上提問

鄰鳳山國中捷運日系侘寂風孝親房透天

1049397

周秋玫0973733125

鄰鳳山國中捷運日系侘寂風孝親房透天
  • 相似物件推薦

物件詳細資料

點閱次數:82次

  • 房屋資訊

    車位/備註
    使用分區
    第三之一種住宅區
    現況
    空屋
    面臨路寬
    6 米
    建築結構
    加強磚造
  • 謄本資料

    主建物
    25.21 坪
    附屬建物
    公共設施
    車位坪
    地下室
    地坪
    16.03 坪
    謄本主要用途
    *小數點取二位第三位無條件捨去

周邊資訊

捷運‧公車站牌(1公里內)

捷運站:O14鳳山國中站 (223 公尺)

市場

工協市場

鄰近學校(2公里內)

市立鳳山國中,市立中正國小

公園

大東文化藝術中心

特色說明

  • 近學校
  • 近市場
  • 近捷運站
  • 學區→明星學區鳳山國中。
  • 交通→出門即是鳳山國中捷運站及鄰近未來國道7號交流道,緊扼鳳山、大寮、屏東的交通
  • 休閒→鄰近鳳凰山、大東文藝中心、濕地公園、空中鳳城,還有81期重劃區4座特色公園
  • 商圈→鄰近光遠、經武、瑞竹、工協市場…..採買極便利。
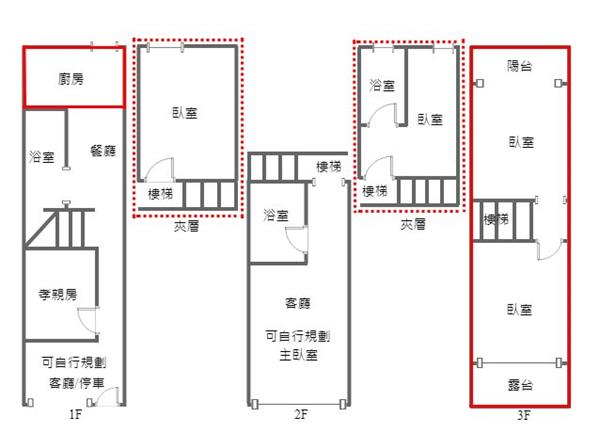
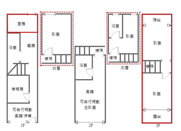
  • 老屋的逆齡,屋主特請設計師親自監工,花費數百萬,使用鋼構加強,用心打造日式侘寂風。 客廳採大面窗,一樓設有孝親房,門前方便可停1~2車。 巷子鄰居非常好相處,皆為軍公教公務員退休居多。

地圖/街景

實價登錄