金獅湖商圈三角窗邊間翻新收租六套房透店

238080.08萬/坪

德賢德惠店(凱璿成家不動產有限公司)

07-3627711

 預約看屋  線上提問

金獅湖商圈三角窗邊間翻新收租六套房透店

0484425

073627711

買屋 / 高雄市 / 三民區 /
金獅湖商圈三角窗邊間翻新收租六套房透店
  • 相似物件推薦

物件詳細資料

點閱次數:75次

  • 房屋資訊

    車位/備註
    入門朝向
    座東 朝西
    使用分區
    第四種住宅區
    面臨路寬
    20 米
    建築結構
    加強磚造
  • 謄本資料

    主建物
    29.72 坪
    附屬建物
    公共設施
    車位坪
    地下室
    地坪
    28.4 坪
    謄本主要用途
    店舖.住宅
    *小數點取二位第三位無條件捨去

周邊資訊

市場

鼎新早市

鄰近學校(2公里內)

市立鼎金國小,市立鼎金國中

特色說明

  • 近學校
  • 近市場
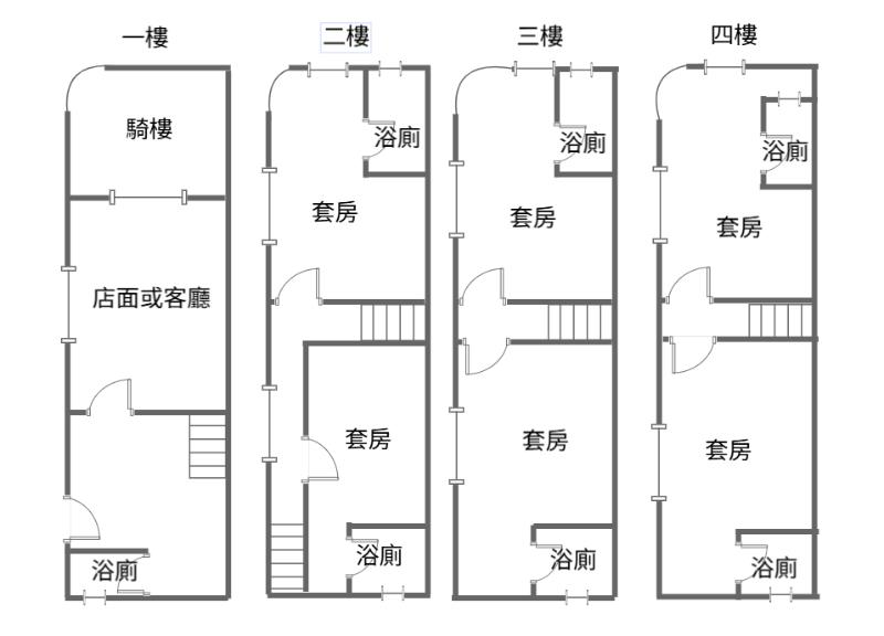
  • ◎座西南潮東北.面寬4.12米.屋況佳11年前有重新拉皮增建 ◎三角窗邊間透天店面標的物顯眼 ◎現一樓租期至10月份及騎樓有出租需承接租約 ◎二至四樓前後套房共六套房.衛浴全開窗不潮溼 ◎套房設備齊全空間超大.賣方現況交屋.不負瑕疵擔保 ◎原本二樓增建到四樓.頂樓有做防水隔熱工程.全棟光線明亮.滿租投報率高.店住兩用

地圖/街景

實價登錄