近前鎮高中捷運站|面正路|需整理起家厝透天

125033.93萬/坪

十全博愛店(凱璿凱樺不動產事業有限公司)

07-3131888

 預約看屋  線上提問

近前鎮高中捷運站|面正路|需整理起家厝透天

1044892

073131888

買屋 / 高雄市 / 前鎮區 /
近前鎮高中捷運站|面正路|需整理起家厝透天
  • 相似物件推薦

物件詳細資料

點閱次數:62次

  • 房屋資訊

    車位/備註
    入門朝向
    座東 朝西
    使用分區
    商三
    現況
    空屋
    建築結構
    RC結構造
  • 謄本資料

    主建物
    36.84 坪
    附屬建物
    公共設施
    車位坪
    地下室
    地坪
    14.82 坪
    謄本主要用途
    住宅
    *小數點取二位第三位無條件捨去

周邊資訊

捷運‧公車站牌(1公里內)

捷運站:草衙站 (869 公尺)
捷運站:前鎮高中站 (294 公尺)

鄰近學校(2公里內)

市立仁愛國小

商圈

草衙生活圈

特色說明

  • 近學校
  • 近捷運站
  • 近商圈
  • ◎少釋出的路段透天,加上鄰近捷運站,市場上的替代品少
  • ◎後方可分開進出的優勢,等於多一條獨立動線
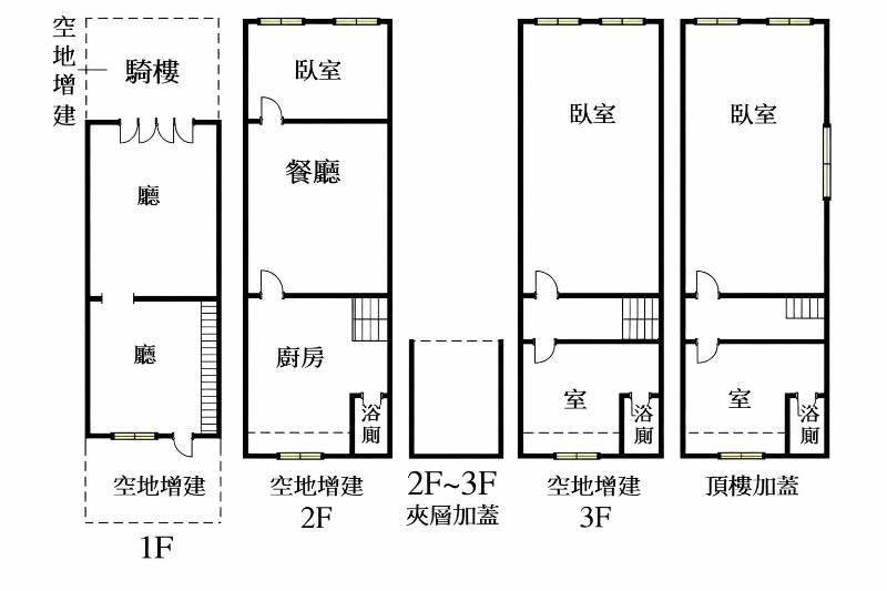
  • ◎汙水處理已完工,頂樓有增建
  • ◎巷透價格入手正路上透天
  • ◎屋主起家厝誠意出售

地圖/街景

實價登錄