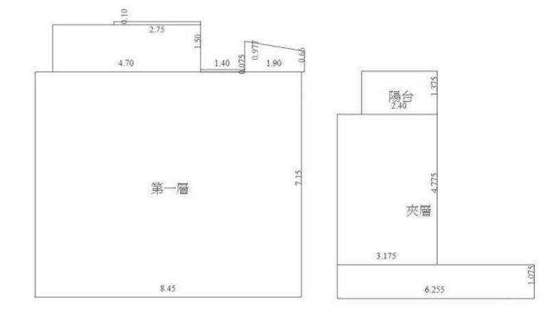
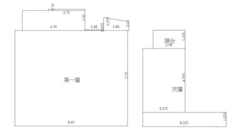
左營高鐵諾金【全新完工】面寬8.45米店面(車位另購)

163145萬/坪

十全博愛店(凱璿凱樺不動產事業有限公司)

0978002013

 預約看屋  線上提問

左營高鐵諾金【全新完工】面寬8.45米店面(車位另購)

Y0123072

蔣綵淨0978002013

左營高鐵諾金【全新完工】面寬8.45米店面(車位另購)
  • 相似物件推薦

物件詳細資料

點閱次數:137次

  • 房屋資訊

    車位/備註
    使用分區
    第五種住宅區
    現況
    空屋
    建築結構
    鋼筋混凝土
  • 謄本資料

    主建物
    27.61 坪
    附屬建物
    0.99 坪
    公共設施
    7.63 坪
    車位坪
    地下室
    地坪
    謄本主要用途
    集合住宅
    *小數點取二位第三位無條件捨去

周邊資訊

捷運‧公車站牌(1公里內)

捷運站:左營站 (502 公尺)

鄰近學校(2公里內)

市立屏山國小,市立左營國中

特色說明

  • 近學校
  • 近捷運站
  • ◎近左營高鐵三鐵共構.新光三越.彩虹市集.生活便利.交通機能完善
  • ◎公設:接待大廳.中庭花園.兒童遊戲室.健身房.閱讀室.KTV
  • ◎大雅廚具.BWT淨水機.SPC石塑隔音地板.安靜舒適.隔音沒煩惱
  • ◎面寬8.45米店面.夾層好利用.社區336戶.適合工作室.超商.輕食早餐店等…
  • ◎本案土地持分與其他建物共同持分.地坪以建商分割後依比例分配坪數

地圖/街景

實價登錄