鳳頂邊間金透天|近陸軍步校
1860
萬
25.76
萬/坪
詳細資料
周邊
特色說明
地圖街景
實價登錄
十全博愛店
(凱璿凱樺不動產事業有限公司)
07-3131888
預約看屋
線上提問
鳳頂邊間金透天|近陸軍步校
1881725
073131888
預約
提問
服務據點
加入我們
人才招募
店專區
留言諮詢
物件追蹤清單
Google搜尋
一般會員
帳號
此欄位必填!
密碼
此欄位必填!
登入
送出註冊/登入視同您已閱讀,並同意
權利義務說明內容
註冊
|
忘記密碼
此欄位必填!
此欄位必填!
此欄位必填!
登入
忘記密碼
|
忘記密碼
Email
簡訊
請您輸入店代號及帳號,我們會儘速將您的密碼傳送至您的信箱或手機簡訊。
店代號
帳 號
送出
凱璿不動產事業
[首頁]
首頁
買屋
找售案
新成屋
買方需求留言
賣屋
賣方需求留言
租屋
找租案
出租需求留言
關於凱璿
公司簡介
教育訓練中心
人才招募
得獎紀錄
隱私權聲明
活動資訊
活動花絮
房產動態
特約代書
建地價格試算
買屋
/
高雄市
/
鳳山區
/
鳳頂邊間金透天|近陸軍步校
請注意,上方物件照片如有街景,為物件附近環境介紹,非物件本身。
編號:
1881725
複製分享
1860
萬
25.76
萬/坪
貸款試算
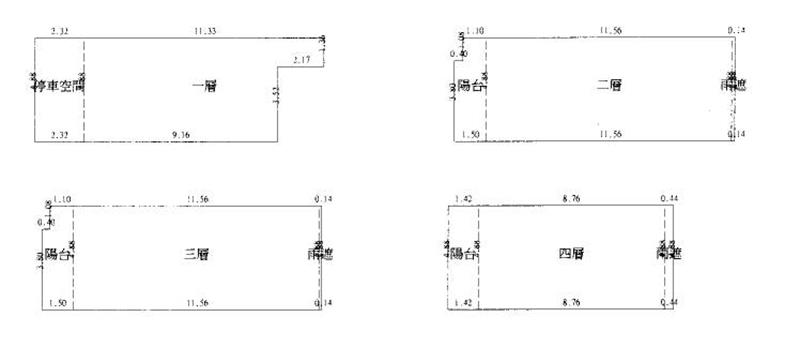
格局
5房 2 廳 4 衛
格局
屋齡
21.5 年
屋齡
權狀坪
72.22 坪
權狀坪
地址
鳳山區鳳頂路
型態/類別
透天 /住家
樓別/樓高
1-4 /4
主+附
72.22 坪
地坪
25.88 坪
十全博愛店
(凱璿凱樺不動產事業有限公司)
高雄市三民區十全一路467號
07-3131888
立即預約看屋
線上提問
先生
小姐
方便聯絡時間
皆可
早上
下午
晚上
預約看屋
先生
小姐
線上提問
相似物件推薦
鳳山臨路店面...
1860
萬
建坪:
71.55
開放空間
鳳山區中山西路
近88快速道...
1988
萬
建坪:
65.13
開放空間有廁所
鳳山區鳳頂路
鳳山五甲商圈...
1850
萬
建坪:
64.75
6
房
鳳山區南華一路
林森路上 近...
1580
萬
建坪:
61.51
5
房
鳳山區林森路
五甲商圈南成...
1680
萬
建坪:
65.02
5
房
鳳山區福安二街
鳳山稀有五房...
1990
萬
建坪:
66.16
5
房
鳳山區埤頂街
鳳山~近捷運...
1820
萬
建坪:
59.93
3
房
鳳山區埤北路
五甲商圈正1...
1680
萬
建坪:
65.02
5
房
鳳山區福安二街
武營路大地坪...
1698
萬
建坪:
60.7
5
房
鳳山區武營路
鳳山/大寮/...
1820
萬
建坪:
59.94
4
房
鳳山區埤北路
鳳山大寮捷運...
2180
萬
建坪:
67.4
5
房
鳳山區埤北路
鳳山鳳甲77...
2158
萬
建坪:
68.25
5
房
鳳山區鳳燕一街
大東 鳳山國...
2100
萬
建坪:
61.56
4
房
鳳山區光遠路
衛武營X三井...
1858
萬
建坪:
65
3+1房2廳3衛
鳳山區光華東路
物件詳細資料
點閱次數:38次
房屋資訊
車位/備註
無
使用分區
住三
現況
出租
建築結構
RC結構造
謄本資料
主建物
64.89 坪
附屬建物
7.32 坪
公共設施
車位坪
地下室
地坪
25.88 坪
謄本主要用途
店舖,集合住宅,停車空間
*小數點取二位第三位無條件捨去
周邊資訊
市場
安中黃昏市場
特色說明
近市場
◎臨路金店面.適合各行各業 ◎穩定收租中.鄰近陸軍步校 ◎鄰近快速道路.南北往
地圖/街景
實價登錄