鳳山國中捷運光遠商圈翻新車庫透天

145840.27萬/坪

十全博愛店(凱璿凱樺不動產事業有限公司)

07-3131888

 預約看屋  線上提問

鳳山國中捷運光遠商圈翻新車庫透天

1881723

073131888

買屋 / 高雄市 / 鳳山區 /
鳳山國中捷運光遠商圈翻新車庫透天
  • 相似物件推薦

物件詳細資料

點閱次數:100次

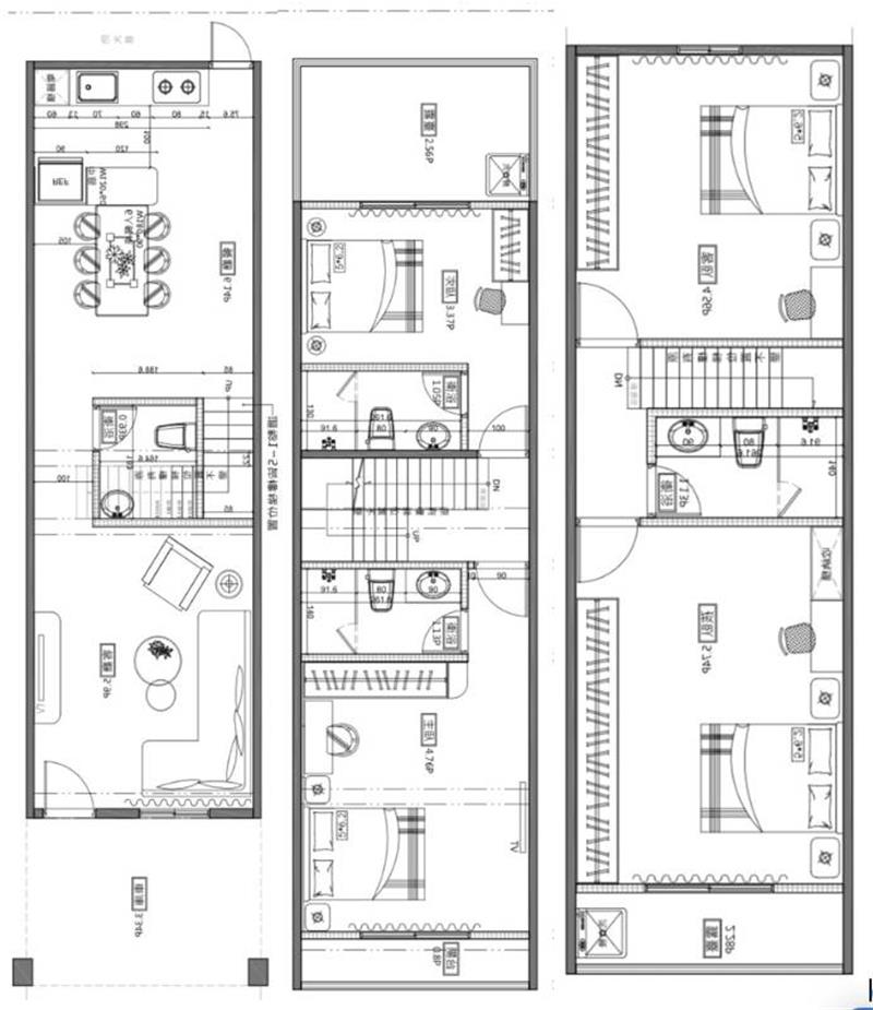
  • 房屋資訊

    車位/備註
    入門朝向
    座西南 朝東北
    使用分區
    住三之一
    現況
    空屋
    建築結構
    加強磚造
  • 謄本資料

    主建物
    25.41 坪
    附屬建物
    公共設施
    車位坪
    地下室
    地坪
    19.66 坪
    謄本主要用途
    住商用
    *小數點取二位第三位無條件捨去

周邊資訊

捷運‧公車站牌(1公里內)

捷運站:大東站 (422 公尺)
捷運站:鳳山國中站 (541 公尺)

市場

鳳山第一市場

鄰近學校(2公里內)

市立大東國小

公園

大東文化藝術中心

特色說明

  • 近學校
  • 近市場
  • 近捷運站
  • ◎全屋從地基全整新 一流建材 高檔廚具 精美裝潢 ◎配備高質感密碼鎖 出門不用帶

    地圖/街景

    實價登錄