全屋翻新透天丨精美家具裝潢丨鳳山光遠商圈

145850.85萬/坪

華夏新莊店(凱璿泊睿不動產事業有限公司)

07-3591515

 預約看屋  線上提問

全屋翻新透天丨精美家具裝潢丨鳳山光遠商圈

1852335

073591515

買屋 / 高雄市 / 鳳山區 /
全屋翻新透天丨精美家具裝潢丨鳳山光遠商圈
  • 相似物件推薦

物件詳細資料

點閱次數:130次

  • 房屋資訊

    車位/備註
    入門朝向
    座北 朝南
    使用分區
    第三之一種住宅區
    現況
    空屋
    建築結構
    加強磚造
  • 謄本資料

    主建物
    28.67 坪
    附屬建物
    公共設施
    車位坪
    地下室
    地坪
    19.66 坪
    謄本主要用途
    住商用
    *小數點取二位第三位無條件捨去

周邊資訊

市場

鳳山第二公有市場

鄰近學校(2公里內)

市立瑞興國小,市立鳳山國中

特色說明

  • 近學校
  • 近市場
  • 近捷運站
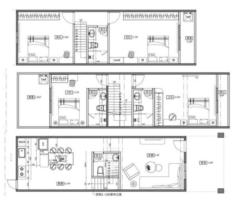
  • ◎全屋整理水電翻新,可立即入住
  • ◎現況規劃雙套房,日式風格高檔裝潢
  • ◎恆溫衛浴設備,精美高級廚具
  • ◎鄰近大東&鳳山國中捷運站,周邊商圈機能完整方便
  • ◎三樓為增建區域,室內家具均附贈

地圖/街景

地圖街景建置中

實價登錄