土庫商圈|家樂福|天下第一國|雙車墅透天

225036.54萬/坪

農十六凱璿店(凱璿不動產事業股份有限公司博愛分公司)

07-5559889

 預約看屋  線上提問

土庫商圈|家樂福|天下第一國|雙車墅透天

1848335

075559889

買屋 / 高雄市 / 楠梓區 /
土庫商圈|家樂福|天下第一國|雙車墅透天
  • 相似物件推薦

物件詳細資料

點閱次數:58次

  • 房屋資訊

    車位/備註
    私有 獨立車庫
    入門朝向
    座西北 朝東南
    使用分區
    住三
    現況
    空屋
    建築結構
    鋼筋混凝土
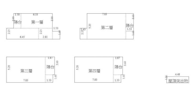
  • 謄本資料

    主建物
    54.48 坪
    附屬建物
    7.09 坪
    公共設施
    車位坪
    地下室
    地坪
    22.8 坪
    謄本主要用途
    住家用
    *小數點取二位第三位無條件捨去

周邊資訊

捷運‧公車站牌(1公里內)

捷運站:R22青埔站 (989 公尺)

市場

楠梓第一市場

鄰近學校(2公里內)

市立楠梓國小,市立楠梓國中

公園

創新公園

特色說明

  • 近學校
  • 近市場
  • 近捷運站
  • 近公園
  • ◎前後雙車墅,採光通風好,屋況超優;可增設孝親房(套房)。 ◎家樂福、全聯、迪卡儂、楠梓第一市場、橋頭市場⋯生活機能強。 ◎台糖花卉農場、橋頭糖廠、花市、棒球場、TKS賽車場⋯戶外活動豐富。 ◎楠梓創新寵物公園、清福公園,散步運動身體好。 ◎近楠梓國小、國中、高中,12年完整國民教育,就學方便。 ◎近R22青埔捷運站、高速公路、火車站,交通便利。

地圖/街景

實價登錄