美術館青海商圈兩房平面車位稀有釋出

119837.84萬/坪

十全美都店(凱璿樺溱不動產有限公司)

07-3115858

 預約看屋  線上提問

美術館青海商圈兩房平面車位稀有釋出

S2946393

073115858

買屋 / 高雄市 / 鼓山區 /
美術館青海商圈兩房平面車位稀有釋出
梵谷
  • 相似物件推薦

物件詳細資料

點閱次數:70次

  • 房屋資訊

    車位/備註
    公設車位 坡道/平面
    管理費
    1772元/月繳
    入門朝向
    座東南 朝西北
    使用分區
    特定第五種住宅區
    現況
    空屋
    建築結構
    鋼筋混凝土
  • 謄本資料

    主建物
    15.1 坪
    附屬建物
    2.14 坪
    公共設施
    7.21 坪(內含車位:7.21坪)
    車位坪
    7.21 坪
    地下室
    地坪
    4.26 坪
    謄本主要用途
    住家用
    *小數點取二位第三位無條件捨去

周邊資訊

捷運‧公車站牌(1公里內)

捷運站:臺鐵美術館站 (760 公尺)
捷運站:美術館站 (292 公尺)
捷運站:聯合醫院站 (291 公尺)
捷運站:龍華國小站 (648 公尺)
捷運站:內惟藝術中心站 (670 公尺)

市場

內惟市場

鄰近學校(2公里內)

市立中山國小,市立七賢國中(龍美校區)

公園

美術館

特色說明

  • 近學校
  • 近市場
  • 近捷運站
  • 近公園
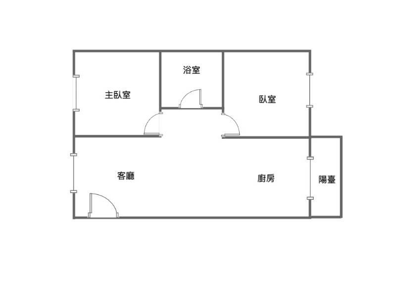
  • 大兩房格局方正,居住舒適度滿分!
  • 附平面車位,停車輕鬆不煩惱。
  • 周邊綠園道、公園環繞,生活機能成熟,小家庭、自住族最愛。
  • 美術館優質地段+兩房平車,錯過真的很可惜!

    地圖/街景

    實價登錄