霞海臨路可停3車電梯稀有太子美車墅
3800
萬
43.24
萬/坪
詳細資料
周邊
特色說明
地圖街景
實價登錄
農十六凱璿店
(凱璿不動產事業股份有限公司博愛分公司)
07-5559889
預約看屋
線上提問
霞海臨路可停3車電梯稀有太子美車墅
1060754
075559889
預約
提問
服務據點
加入我們
人才招募
店專區
留言諮詢
物件追蹤清單
Google搜尋
一般會員
帳號
此欄位必填!
密碼
此欄位必填!
登入
送出註冊/登入視同您已閱讀,並同意
權利義務說明內容
註冊
|
忘記密碼
此欄位必填!
此欄位必填!
此欄位必填!
登入
忘記密碼
|
忘記密碼
Email
簡訊
請您輸入店代號及帳號,我們會儘速將您的密碼傳送至您的信箱或手機簡訊。
店代號
帳 號
送出
凱璿不動產事業
[首頁]
首頁
買屋
找售案
新成屋
買方需求留言
賣屋
賣方需求留言
租屋
找租案
出租需求留言
關於凱璿
公司簡介
教育訓練中心
人才招募
得獎紀錄
隱私權聲明
活動資訊
活動花絮
房產動態
特約代書
建地價格試算
買屋
/
高雄市
/
仁武區
/
霞海臨路可停3車電梯稀有太子美車墅
請注意,上方物件照片如有街景,為物件附近環境介紹,非物件本身。
編號:
1060754
3800
萬
(含車位價)
43.24
萬/坪
貸款試算
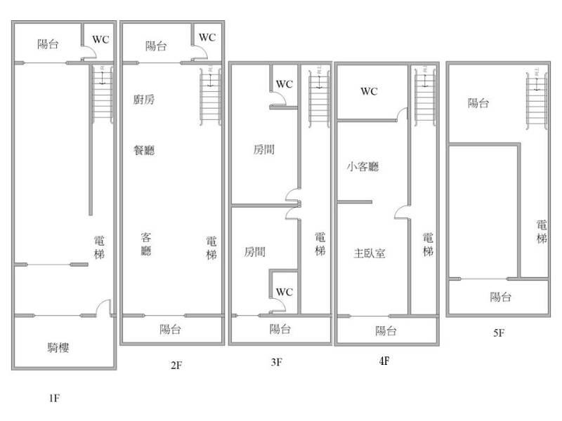
格局
依現況
格局
屋齡
9.8 年
屋齡
建坪
87.88 坪
建坪
地址
仁武區霞海東一街
型態/類別
大樓 /住家
樓別/樓高
1-4 /4
主+附
87.88 坪
地坪
33.02 坪
農十六凱璿店
(凱璿不動產事業股份有限公司博愛分公司)
高雄市鼓山區明誠三路606號
07-5559889
立即預約看屋
線上提問
先生
小姐
方便聯絡時間
皆可
早上
下午
晚上
我同意條款
隱私權聲明
預約看屋
先生
小姐
我同意條款
隱私權聲明
線上提問
相似物件推薦
莫內花園│大...
3980
萬
建坪:
78.24
3
房
仁武區慈惠八街
物件詳細資料
點閱次數:26次
房屋資訊
車位/備註
私有 獨立車庫
使用分區
住宅區
現況
空屋
建築結構
鋼筋混凝土造
電梯總數
1
謄本資料
主建物
83.61 坪
附屬建物
4.26 坪
公共設施
車位坪
地下室
地坪
33.02 坪
謄本主要用途
住家用
*小數點取二位第三位無條件捨去
周邊資訊
鄰近學校(2公里內)
市立八卦國小,市立文府國小,市立福山國小,市立文府國中
特色說明
近學校
稀有臨路電梯 屋齡新 屋況佳
周遭重劃區 未來增值可期
太子雲知名社區 質感佳
知名建商品質好
使用空間大.舒適住宅
地圖/街景
實價登錄