雙捷運旁|大面寬 約15米★臨路醒目三角窗金店面

198035.45萬/坪

德賢德惠店(凱璿成家不動產有限公司)

07-3627711

 預約看屋  線上提問

雙捷運旁|大面寬 約15米★臨路醒目三角窗金店面

0170495

073627711

買屋 / 高雄市 / 小港區 /
雙捷運旁|大面寬 約15米★臨路醒目三角窗金店面
太子龍邸
  • 相似物件推薦

物件詳細資料

點閱次數:22次

  • 房屋資訊

    車位/備註
    管理費
    800元/月繳
    使用分區
    住三
    現況
    空屋
    面臨路寬
    10 米
    建築結構
    RC
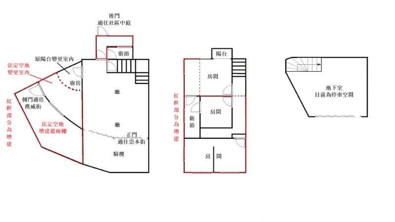
  • 謄本資料

    主建物
    42.66 坪
    附屬建物
    1.97 坪
    公共設施
    11.21 坪
    車位坪
    地下室
    地坪
    12.82 坪
    謄本主要用途
    住商用
    *小數點取二位第三位無條件捨去

周邊資訊

市場

小港第一市場

鄰近學校(2公里內)

市立前鎮國中,市立仁愛國小

特色說明

  • 近學校
  • 近市場
  • 近捷運站
  • ◎約15米大面寬店面超顯眼
  • ◎門前路寬12米,停車好方便
  • ◎500公尺內4間便利商店,地點佳、機能好
  • ◎距離高雄國際機場僅1公里
  • ◎5分鐘內可達草衙、小港機場捷運站 ◎緊鄰省道,四通八達超方便

地圖/街景

地圖街景建置中

實價登錄