中央公園穩定收租整新五套房

175024.36萬/坪

楠梓土庫店(凱璿不動產事業股份有限公司-楠梓分公司)

07-3515353

 預約看屋  線上提問

中央公園穩定收租整新五套房

1030581

073515353

買屋 / 高雄市 / 前金區 /
中央公園穩定收租整新五套房
福興大樓
  • 相似物件推薦

物件詳細資料

點閱次數:36次

  • 房屋資訊

    車位/備註
    管理費
    4000元/月繳
    使用分區
    商業區
    現況
    出租
    面臨路寬
    20 米
    建築結構
    鋼筋混凝土造
    電梯總數
    1
    每層戶數
    1 戶
  • 謄本資料

    主建物
    46.04 坪
    附屬建物
    0.83 坪
    公共設施
    24.98 坪
    車位坪
    地下室
    地坪
    4.73 坪
    謄本主要用途
    見使用執照
    *小數點取二位第三位無條件捨去

周邊資訊

捷運‧公車站牌(1公里內)

捷運站:O4前金站 (204 公尺)
捷運站:中央公園站 (610 公尺)
捷運站:美麗島站 (765 公尺)

市場

前金市場

鄰近學校(2公里內)

市立前金國小,市立前金國中

公園

中央公園(城市光廊)

特色說明

  • 近學校
  • 近市場
  • 近捷運站
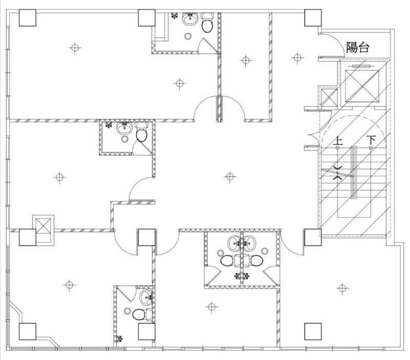
  • ◎現況五套房,屋況新穎,均有對外窗,間間雙人房。
  • ◎步行可達O4捷運前金站,大同醫院旁,生活機能佳。
  • ◎鄰近中央公園,黃金中心地段。
  • ◎穩定收租中,提前約看。

    地圖/街景

    實價登錄