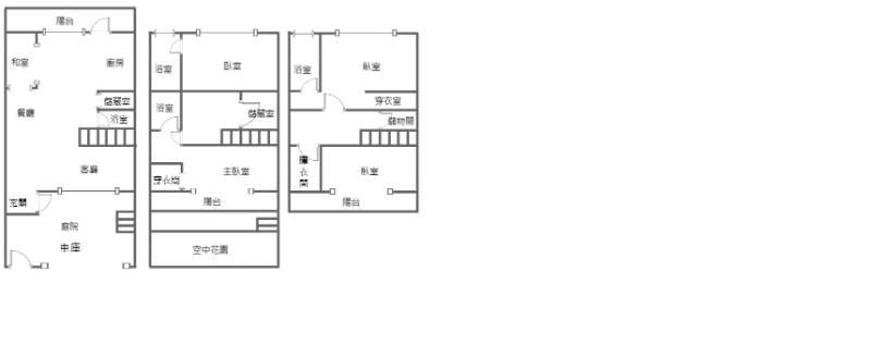
可停4車面寬空中花園3大套房夢幻別墅

228025.87萬/坪

十全博愛店(凱璿凱樺不動產事業有限公司)

0978002013

 預約看屋  線上提問

可停4車面寬空中花園3大套房夢幻別墅

1853858

蔣綵淨0978002013

可停4車面寬空中花園3大套房夢幻別墅
  • 相似物件推薦

物件詳細資料

點閱次數:5次

  • 房屋資訊

    車位/備註
    入門朝向
    座東南 朝西北
    使用分區
    第三種住宅區
    現況
    自住(用)
    面臨路寬
    10 米
    建築結構
    鋼筋混凝土造
  • 謄本資料

    主建物
    83.08 坪
    附屬建物
    5.07 坪
    公共設施
    車位坪
    地下室
    地坪
    60.88 坪
    謄本主要用途
    住家用
    *小數點取二位第三位無條件捨去

周邊資訊

市場

傳統市場

鄰近學校(2公里內)

市立坪頂國小,市立明義國中

公園

大坪頂公園

特色說明

  • 近學校
  • 近市場
  • 1.大空間、大尺度,全家人的夢想家園,舒適生活一次擁有!
  • 2.孝親房+電梯預留設計,照顧家人最貼心,幸福生活首選!
  • 3.空中花園,靜享綠意,雙併車位,停車超方便,尊榮首選!
  • 4.面寬6米,氣派大器,83坪大建坪,生活質感全面升級!
  • 5.大坪頂高坪路稀有釋出,獨立大地坪,將花圃改建可停4台車,給家人最好的家!

地圖/街景

實價登錄