捷運生活圈靜巷透天,低總價成家首選
888
萬
33.98
萬/坪
詳細資料
周邊
特色說明
地圖街景
實價登錄
遠百一心店
(凱璿慕理不動產有限公司)
07-3303999
預約看屋
線上提問
捷運生活圈靜巷透天,低總價成家首選
0467716
073303999
預約
提問
服務據點
加入我們
人才招募
店專區
留言諮詢
物件追蹤清單
Google搜尋
一般會員
帳號
此欄位必填!
密碼
此欄位必填!
登入
送出註冊/登入視同您已閱讀,並同意
權利義務說明內容
註冊
|
忘記密碼
此欄位必填!
此欄位必填!
此欄位必填!
登入
忘記密碼
|
忘記密碼
Email
簡訊
請您輸入店代號及帳號,我們會儘速將您的密碼傳送至您的信箱或手機簡訊。
店代號
帳 號
送出
凱璿不動產事業
[首頁]
首頁
買屋
找售案
新成屋
買方需求留言
賣屋
賣方需求留言
租屋
找租案
出租需求留言
關於凱璿
公司簡介
教育訓練中心
人才招募
得獎紀錄
隱私權聲明
活動資訊
活動花絮
房產動態
特約代書
建地價格試算
買屋
/
高雄市
/
橋頭區
/
捷運生活圈靜巷透天,低總價成家首選
請注意,上方物件照片如有街景,為物件附近環境介紹,非物件本身。
編號:
0467716
888
萬
33.98
萬/坪
貸款試算
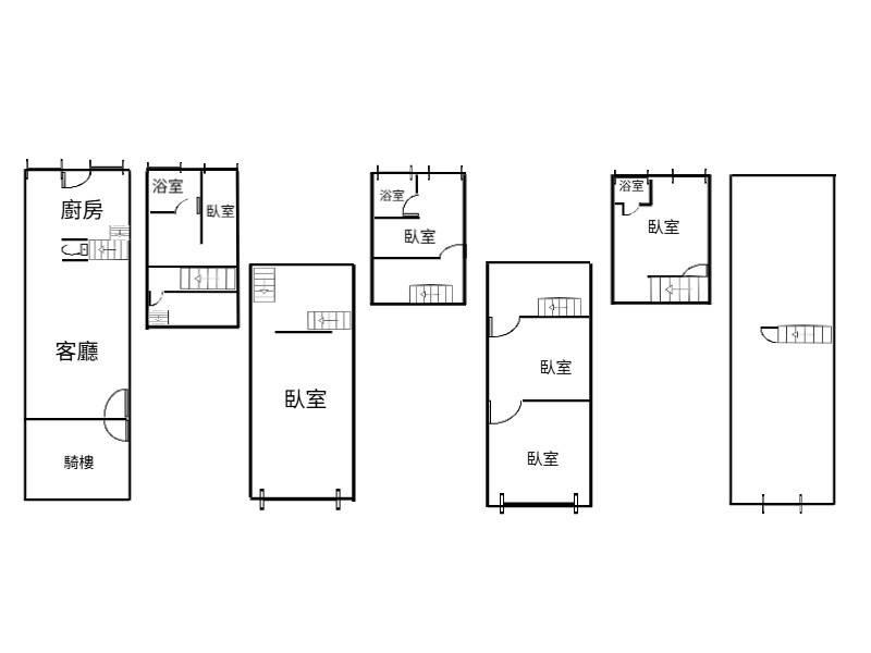
格局
6房 2 廳 4 衛
格局
屋齡
49.1 年
屋齡
權狀坪
26.13 坪
權狀坪
地址
橋頭區仕豐南路
型態/類別
透天 /住家
樓別/樓高
1-2 /2
主+附
26.13 坪
地坪
17.24 坪
遠百一心店
(凱璿慕理不動產有限公司)
高雄市前鎮區一心二路205號
07-3303999
立即預約看屋
線上提問
先生
小姐
方便聯絡時間
皆可
早上
下午
晚上
預約看屋
先生
小姐
線上提問
相似物件推薦
橋頭仕豐商圈...
788
萬
建坪:
23.55
3
房
橋頭區仕豐路
橋頭國小#前...
980
萬
建坪:
27.34
3
房
橋頭區建樹路
台積電#高大...
938
萬
建坪:
23.69
4
房
橋頭區甲昌路
橋頭高雄大學...
938
萬
建坪:
23.69
4
房
橋頭區甲昌路
物件詳細資料
點閱次數:1次
房屋資訊
車位/備註
無
現況
空地
建築結構
鋼筋混凝土RC
謄本資料
主建物
26.13 坪
附屬建物
公共設施
車位坪
地下室
地坪
17.24 坪
謄本主要用途
*小數點取二位第三位無條件捨去
周邊資訊
捷運‧公車站牌(1公里內)
捷運站:青埔站 (898 公尺)
捷運站:橋頭糖廠站 (688 公尺)
鄰近學校(2公里內)
市立仕隆國小,市立橋頭國中
特色說明
近學校
近捷運站
◎緊鄰橋頭老街與活動中心,散步就到市場,生活機能極佳 ◎近捷運與火車站,車程三分鐘即達,通勤往返高雄各區便捷 ◎超稀有低總價透天,小資族買地送屋,告別高房價大樓 ◎格局方正採光好,適合老屋翻修愛好者,打造個人風格美宅
地圖/街景
實價登錄