|
中華明誠店(凱璿不動產事業股份有限公司中華分公司)
07-5520006
|
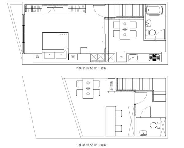
| SKM Park 桂林商圈中安路金店面 | 物件編號:0920753 |
物件特色
|
|
|||||||||||||||||||||||||||||||||||||||||||||
捷運站牌 |
市場 |
學區 |
公園 |
商圈 |
| R4A草衙站 (1626 公尺) |
中安黃昏市場 | 市立桂林國小,市立明義國中 | 桂林里公園 | 桂陽生活圈 |











