五甲家樂福店(凱璿凱碩不動產有限公司)
07-7615999
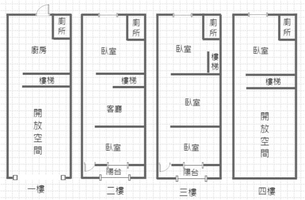
鳳山五甲家樂福活巷優質大地坪透天
物件編號:
1660258
1100
萬
透天
6
房
2
廳
4
衛
物件特色
1.屋況稍加整理.增建至四樓 2.近中山高、黃線捷運、台88線,交通便利 3.室內空間大好規畫使用.樓下可當車庫 4.近五甲家樂福,超商採購便利 5.優質地段、稀有釋出、生活機能佳
地址
鳳山區鳳南路
建物登記
22.39
坪
附屬建物
公共設施
0 坪
停車場
地下室
分項面積主建物
22.39 坪
土地登記總坪數
20.57 坪
管理費
元/每月
車位
無/
座向
屋齡
54 年
樓高/樓別
2 /1-2
類別
住家
外牆建材
捷運站牌
市場
學區
公園
商圈
市立南成國小,市立五甲國中