孟子自由店(凱璿發貴不動產有限公司)
07-3506161
中山大學&渡船頭大地坪收租學舍 物件編號:0453633
2988 透天 1313
物件特色
※年收租破百萬包租婆最愛  ※近中山大學長期滿租中收入穩定 ※渡船頭旁商圈熱鬧生活機能好  ※超大地坪商業用地保值佳 ※無須花錢再整理現買現收租 ※超稀有釋出錯過不再
地址 鼓山區鼓波街
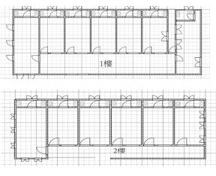
建物登記 82.72
附屬建物 公共設施
停車場 地下室
分項面積主建物82.72 坪
土地登記總坪數74.11 坪
管理費 元/每月
車位 無/
座向 座東南 朝西北
屋齡 78.8 年 樓高/樓別 2 /1-2
類別 住家 外牆建材
捷運站牌 市場 學區 公園 商圈
駁二蓬萊站 (965 公尺)
哈瑪星站 (560 公尺)
哈瑪星站 (419 公尺)
市立壽山國中,市立鼓山國小