楠梓土庫店(凱璿不動產事業股份有限公司-楠梓分公司)
07-3515353
楠梓土庫未來清豐社宅及康橋國際學校商圈〡角窗透店
物件編號:
1661524
6500
萬
透天
8
房
2
廳
10
衛
物件特色
◎商圈內清豐社宅(1594戶)將於116年1月完工,目前生活機能已佳,後續潛力更 ◎本點位社宅前門位置,且在家樂福,全聯,7-11購物動線前 ◎創新路幹道角窗明顯度及接近性均佳,店住兩相宜 ◎台積電及橋科效益增值性佳,提早卡位賺增值 ◎目前投報1.6%(目前租金月收入8萬),三年後可望提升至2.8%(月租金14萬 )
地址
楠梓區創新路
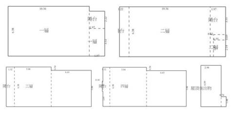
建物登記
105.71
坪
附屬建物
10.87 坪
公共設施
0 坪
停車場
地下室
分項面積主建物
94.84 坪
土地登記總坪數
48.95 坪
管理費
元/每月
車位
無/
座向
座東南 朝西北
屋齡
16.9 年
樓高/樓別
4 /1-4
類別
住家
外牆建材
捷運站牌
市場
學區
公園
商圈
青埔站 (880 公尺)
市立楠梓國小,市立楠梓國中
台糖花卉