五甲家樂福店(凱璿凱碩不動產有限公司)
07-7615999
新五甲特區鳳翔國小旁可停車美透天
物件編號:
1737732
1380
萬
透天
4
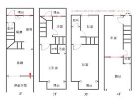
房
2
廳
5
衛
物件特色
新五甲特區,鄰77期重劃區。 鄰88快速道路,規劃中的捷運黃線。 明星學區:鳳翔國小、鳳翔國中,徒步約170公尺及達國小。 周邊綠地覆蓋率高,還鄰近五甲,全聯/家樂福/寶雅/9*9/大型傳統市場,百業林立,一應俱全。 活巷進出,近巷口,一樓退縮,停車方便。 汙水已完成,增建後陽台及頂樓前露台鐵皮,後牆穿鐵衣。
地址
鳳山區鳳南一路
建物登記
34.96
坪
附屬建物
2.37 坪
公共設施
停車場
地下室
分項面積主建物
32.58 坪
土地登記總坪數
15.37 坪
管理費
元/每月
車位
無/
座向
屋齡
41.5 年
樓高/樓別
4 /1-4
類別
住家
外牆建材
捷運站牌
市場
學區
公園
商圈
肉豆公市場
鳳翔國小,鳳翔國中